- 価格
-
3040万円~3860万円
月々の支払い額を見る
- 専有面積
-
62.37㎡~84.39㎡
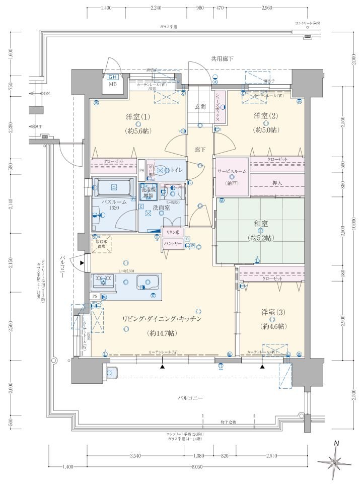
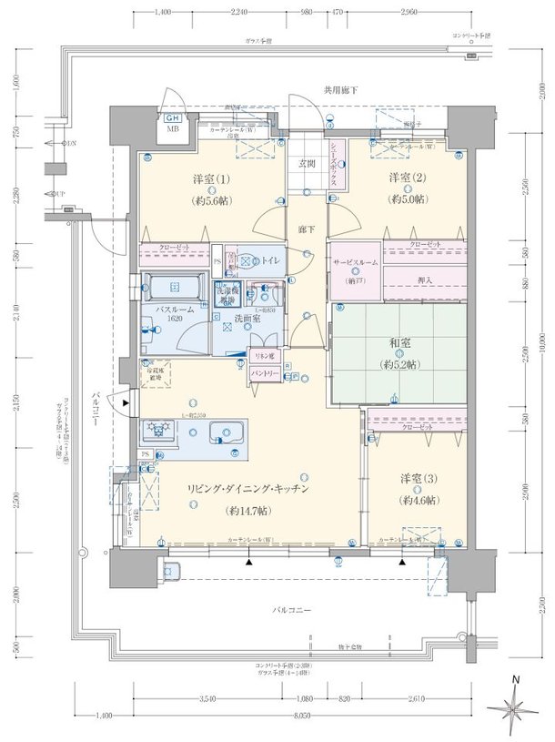
- 間取り
-
2LDK~4LDK
間取りを見る(5件)
- 販売スケジュール
-
先着順申込受付

