プレシス小岩ヴェルデの間取り一覧

お気に入りに
追加する
お気に入りに
追加済み

2LDK掲載1

3LDK掲載5

WIC:ウォークインクローゼット、SIC:シューズインクローゼット、S:サービスルーム(納戸)
※掲載の間取りは設計段階のもので、今後変更になる可能性がございます。

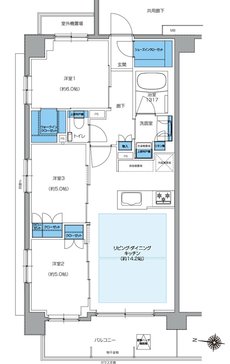
プレシス小岩ヴェルデ 間取り Bタイプ
タイプ

Bタイプ

間取り

2LDK+2WIC+SIC

専有面積

52.29㎡

バルコニー面積

7.31㎡

  • 可変式間仕切り
  • ウォークインクローゼット
  • シューズインクローゼット
  • 南向き
プレシス小岩ヴェルデ 間取り Atタイプ
タイプ

Atタイプ

間取り

3LDK+3WIC+SIC

専有面積

73.55㎡

バルコニー面積

-

備考

テラス面積:12.24㎡
室外機置場面積:0.75㎡

  • ポーチ
  • 玄関からリビングが見えない間取り
  • 可変式間仕切り
  • ウォークインクローゼット
  • シューズインクローゼット
  • 浴室に窓
  • テラス
  • 南向き
プレシス小岩ヴェルデ 間取り Cタイプ
タイプ

Cタイプ

間取り

3LDK+3WIC

専有面積

67.84㎡

バルコニー面積

9.2㎡

備考

3LDK+3WIC(5~8F)
1LDK+2S+3WIC(2~4F)

  • 可変式間仕切り
  • ウォークインクローゼット
  • 南向き
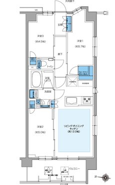
プレシス小岩ヴェルデ 間取り D1タイプ
タイプ

D1タイプ

間取り

3LDK+3WIC+SIC

専有面積

71.03㎡

バルコニー面積

-

備考

バルコニー面積:9.61㎡(2~6F)、9.29㎡(7F)
3LDK+3WIC+SIC(7F)
2LDK+S+3WIC+SIC(2~6F)

  • 可変式間仕切り
  • ウォークインクローゼット
  • シューズインクローゼット
  • 南向き
プレシス小岩ヴェルデ 間取り E2タイプ
タイプ

E2タイプ

間取り

3LDK+WIC

専有面積

59.1㎡

バルコニー面積

8.28㎡

  • 可変式間仕切り
  • ウォークインクローゼット
  • 西向き
プレシス小岩ヴェルデ 間取り Fタイプ
タイプ

Fタイプ

間取り

3LDK+WIC+SIC

専有面積

68.26㎡

バルコニー面積

9.35㎡

備考

室外機置場面積:2.07㎡

  • 玄関からリビングが見えない間取り
  • 可変式間仕切り
  • ウォークインクローゼット
  • シューズインクローゼット
  • 西向き

このページの一番上へ