- 価格
-
6280万円~8480万円
月々の支払い額を見る
- 専有面積
-
94.01㎡~100.80㎡
- 間取り
-
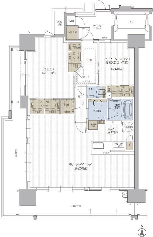
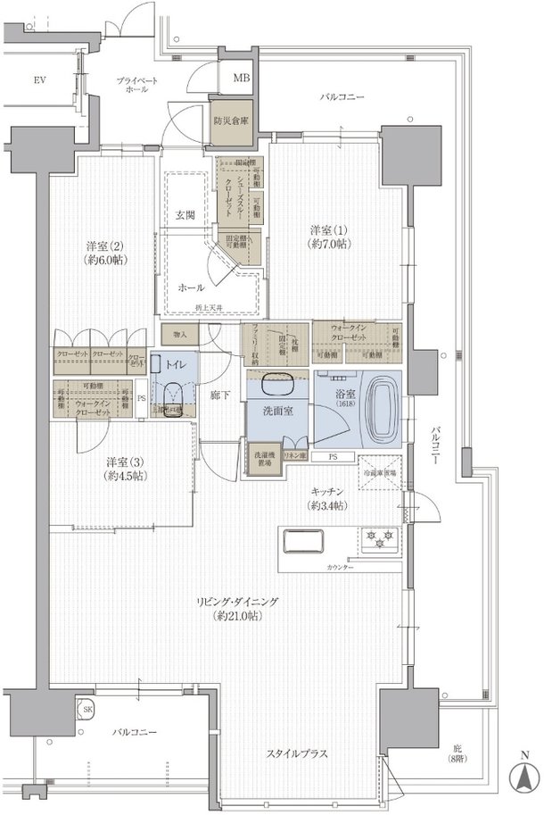
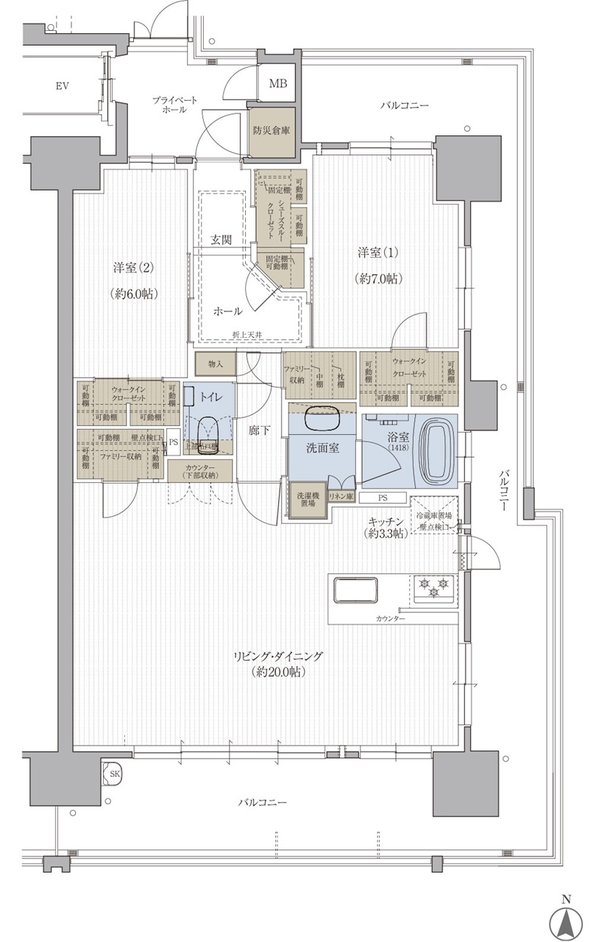
2LDK・2LDK+S・3LDK
間取りを見る(4件)
- 販売スケジュール
-
先着順申込受付中

