- 価格
-
2580万円~6980万円(予定)
月々の支払い額を見る
- 専有面積
-
43.04㎡~80.32㎡
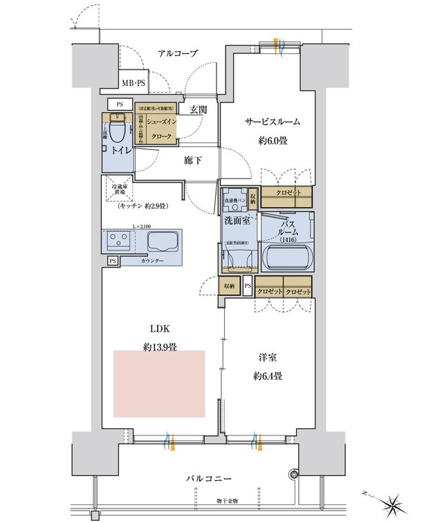
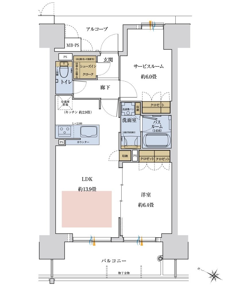
- 間取り
-
1LDK~3LDK
間取りを見る(9件)
- 販売スケジュール
-
販売予定時期:2026年5月上旬

