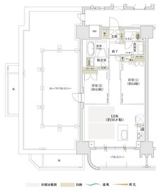
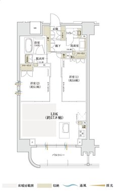
間取り
この物件の詳細情報に戻る2LDK掲載3件
WIC:ウォークインクローゼット
※掲載の間取り図は図面を基に描き起こしたものであり、実際とは異なる場合があります。あらかじめご了承ください。
※無料変更メニューには各部屋ごとに受付期限がございます。詳しくは営業までご確認ください。
関連する他の物件も見てみる
特徴
- 子どもと暮らす(120)
- 対面キッチン(119)
- I型キッチン(115)
- ウォークインクローゼット(113)
- 平置き駐車場(99)
- 可変式間仕切り(95)
- 一人暮らし・二人暮らし向け(94)
- モデルルーム公開中(91)
- 食器洗い乾燥機(食洗機)(90)
- 浴室暖房換気乾燥機(80)
- 複層ガラス(ペアガラス)(78)
- 宅配ボックス(77)
- 床暖房(77)
- ハンズフリーキー(73)
- エコマンション(69)
- 玄関からリビングが見えない間取り(64)
- 駅近(駅徒歩5分以内・駅直結)(64)
- ペット可(59)
- 全戸南向き(51)
- 24時間ゴミ出し可能(49)
- ペット共用施設(49)
- ラウンジ(43)
- 即入居可能(42)
- 二重床/二重天井(41)
- 2面バルコニー(33)
- 内廊下(22)
- アイランドキッチン(14)
- 南東向き(13)
- ルーフバルコニー(9)
- 南東向き中心(3)
地域
間取り
価格帯
不動産会社
駅
沿線

