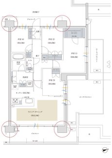
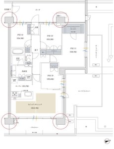
間取り
この物件の詳細情報に戻る2LDK掲載4件
3LDK掲載21件
※F:サービスルーム(納戸) ※WIC:ウォークインクローゼット ※SIC:シューズインクローゼット ※MC:マルチクローゼット
※掲載の図面は計画段階のもので変更になる場合がございます。
関連する他の物件も見てみる
特徴
- 子どもと暮らす(66)
- I型キッチン(62)
- 対面キッチン(61)
- 一人暮らし・二人暮らし向け(59)
- ウォークインクローゼット(56)
- アルコーブ(48)
- 複数沿線利用可能(46)
- 平置き駐車場(43)
- モデルルーム公開中(38)
- 可変式間仕切り(36)
- 床暖房(35)
- 販売前・販売予定(34)
- 南向き(34)
- シューズインクローゼット(32)
- 2面バルコニー(32)
- 宅配ボックス(31)
- 玄関からリビングが見えない間取り(30)
- ZEHマンション(28)
- 複層ガラス(ペアガラス)(23)
- 出入口が2か所以上あるキッチン(20)
- エコマンション(20)
- 広いリビング(19)
- 高級マンション・ハイグレードマンション(18)
- 大規模マンション(17)
- 東向き(16)
- L字バルコニー(16)
- スロップシンク(15)
- 浴室に窓(13)
- 西向き(12)
- ラウンジ(11)
- ルーフバルコニー(9)
- アウトフレーム工法(7)
- ポーチ(6)
- テラス(4)
- テレワーク・在宅勤務におすすめ(3)
- パーティールーム(3)
- 公園・広場(2)
- 第一種低層住居専用地域(2)
- 中庭(パティオ)(1)
地域
間取り
価格帯
不動産会社
駅
沿線

