- 価格
-
3310万円~6230万円
月々の支払い額を見る
- 専有面積
-
45.00㎡~71.25㎡
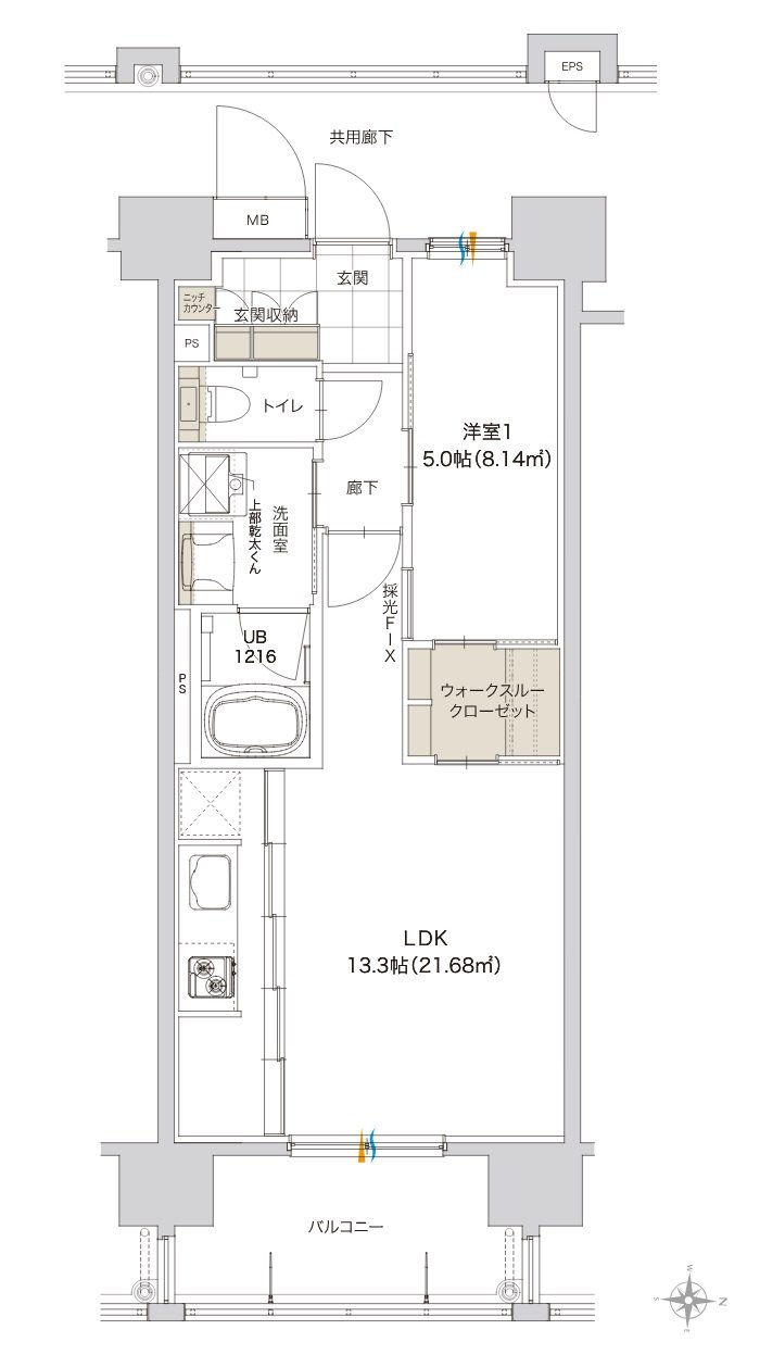
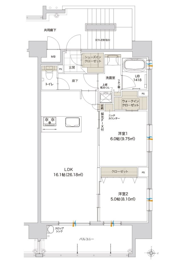
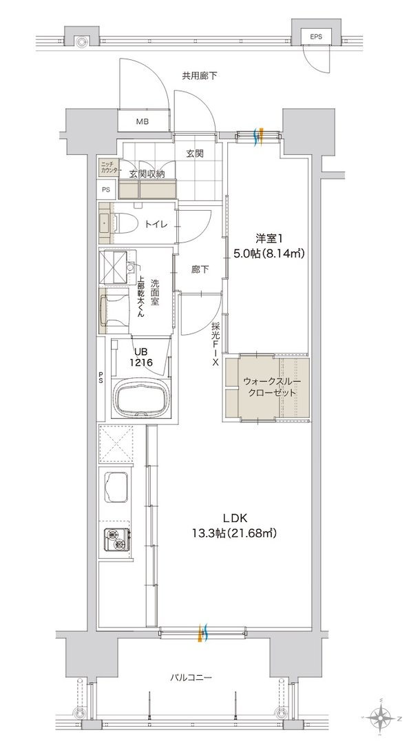
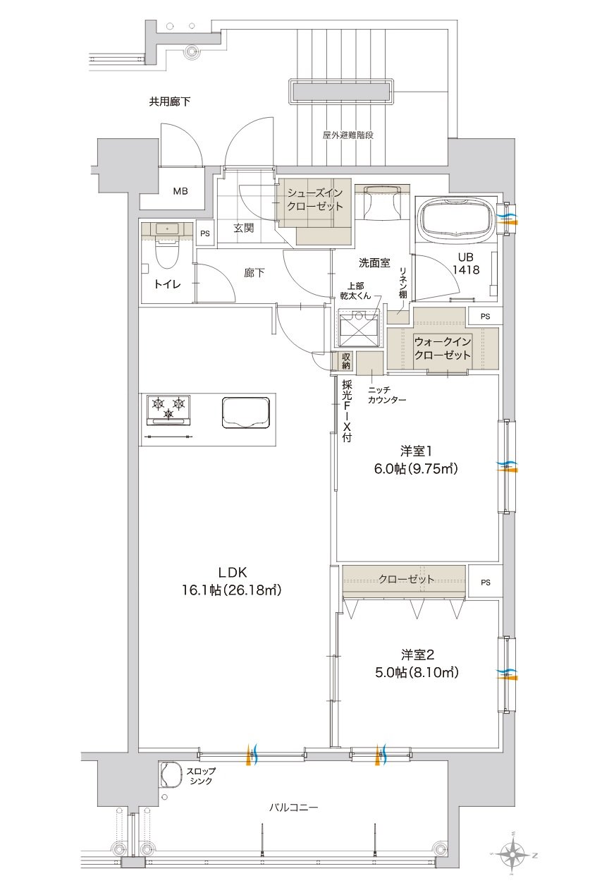
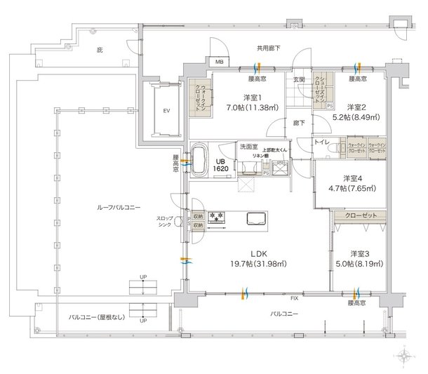
- 間取り
-
1LDK、2LDK、3LDK
間取りを見る(5件)
- 販売スケジュール
-
先着順申込み受付中

