- 価格
-
3990万円、4990万円
月々の支払い額を見る
- 専有面積
-
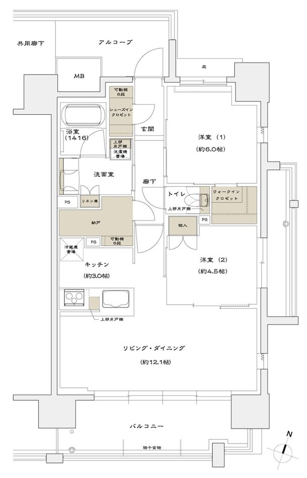
43.63㎡~53.53㎡
- 間取り
-
1LDK~2LDK
間取りを見る(4件)
- 販売スケジュール
-
登録申込受付期間:2026年1月20日(火)~4月19日(日) 受付時間:10:00~18:00 ※最終日は12:00まで 抽選日時:2026年4月19日(日)14:00

