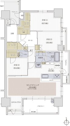
間取り
この物件の詳細情報に戻る2LDK掲載3件
3LDK掲載4件
※掲載の図面は計画段階の図面を基に描いたもので実際とは異なります。また施工上の理由および設計上変更することがございます。
※住戸により仕様、形状が異なる場合がございます。
関連する他の物件も見てみる
特徴
- 子どもと暮らす(12)
- 対面キッチン(11)
- I型キッチン(11)
- ウォークインクローゼット(11)
- 複層ガラス(ペアガラス)(10)
- 食器洗い乾燥機(食洗機)(10)
- 浴室暖房換気乾燥機(10)
- 宅配ボックス(10)
- 防災設備(10)
- 平置き駐車場(10)
- 南向き(10)
- ペット可(10)
- ハンズフリーキー(9)
- エコマンション(9)
- シューズインクローゼット(8)
- 玄関からリビングが見えない間取り(8)
- 一人暮らし・二人暮らし向け(7)
- 広いリビング(7)
- ZEHマンション(7)
- 高級マンション・ハイグレードマンション(6)
- アイランドキッチン(6)
- 24時間ゴミ出し可能(6)
- 出入口が2か所以上あるキッチン(6)
- 床暖房(6)
- アルコーブ(6)
- 二重床/二重天井(6)
- 浴室に窓(5)
- 2面バルコニー(4)
- ペット共用施設(4)
- スロップシンク(4)
- 和室付き(4)
- ポーチ(2)
- L字バルコニー(1)
地域
間取り
価格帯
不動産会社
駅
沿線

