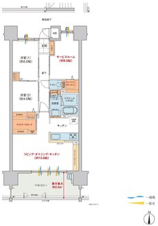
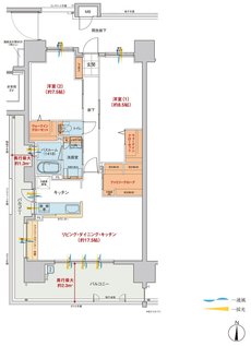
間取り
この物件の詳細情報に戻る2LDK掲載3件
※WICはウォークインクローゼット、FCはファミリークローク、SRはサンルームの略です。
関連する他の物件も見てみる
特徴
- 子どもと暮らす(16)
- 対面キッチン(15)
- ウォークインクローゼット(15)
- モデルルーム公開中(14)
- スロップシンク(13)
- I型キッチン(13)
- 食器洗い乾燥機(食洗機)(11)
- 平置き駐車場(11)
- 一人暮らし・二人暮らし向け(11)
- 駐車場100%以上(11)
- ペット可(10)
- 浴室暖房換気乾燥機(9)
- 複層ガラス(ペアガラス)(9)
- 浴室に窓(9)
- 南向き(9)
- エコマンション(8)
- 24時間ゴミ出し可能(7)
- 全戸南向き(6)
- 南向き中心(6)
- 広いバルコニー(5)
- 一括受電サービス(4)
- ペット共用施設(4)
- アイランドキッチン(3)
- 大規模マンション(3)
- ラウンジ(2)
- 天井高(2.6m以上)(2)
- ワイドスパン(1)
- パーティールーム(1)
- オープンキッチン(1)
地域
間取り
価格帯
不動産会社

