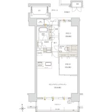
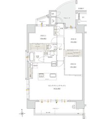
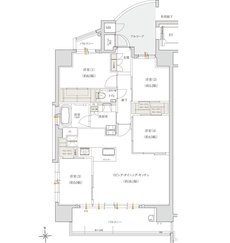
間取り
この物件の詳細情報に戻る3LDK掲載4件
※WIC:ウォークインクローゼット SIC:シューズインクローゼット
※掲載の間取りは設計図書を基に描き起こしたもので、実際とは多少異なる場合があります
関連する他の物件も見てみる
特徴
- 子どもと暮らす(17)
- 食器洗い乾燥機(食洗機)(15)
- 対面キッチン(15)
- 平置き駐車場(15)
- モデルルーム公開中(15)
- I型キッチン(14)
- ウォークインクローゼット(13)
- 一人暮らし・二人暮らし向け(12)
- 浴室暖房換気乾燥機(12)
- 宅配ボックス(12)
- 可変式間仕切り(12)
- 南向き(12)
- ペット可(11)
- 駐車場100%以上(10)
- 一括受電サービス(10)
- スロップシンク(9)
- ハンズフリーキー(8)
- ZEHマンション(8)
- ペット共用施設(8)
- 全戸南向き(7)
- 浴室に窓(6)
- アイランドキッチン(6)
- 電気自動車対応(5)
- 出入口が2か所以上あるキッチン(4)
- 防災設備(3)
- IHクッキングヒーター(2)
- テラス(2)
- アルコーブ(2)
- 太陽光発電(1)
- 第一種低層住居専用地域(1)
地域
間取り
価格帯
不動産会社
駅
沿線

