- 価格
-
3480万円~5770万円
月々の支払い額を見る
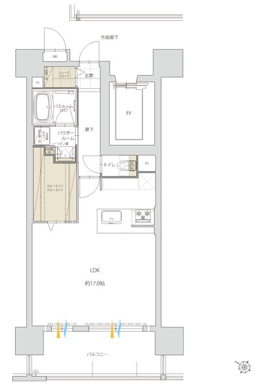
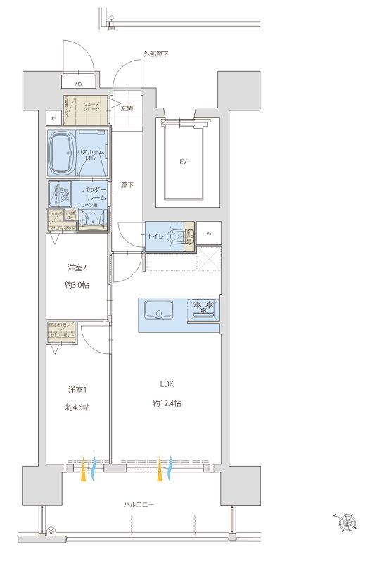
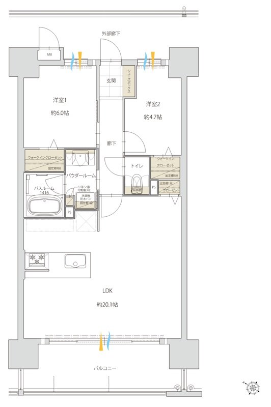
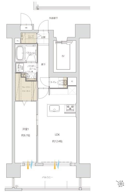
- 専有面積
-
48.45㎡~74.90㎡
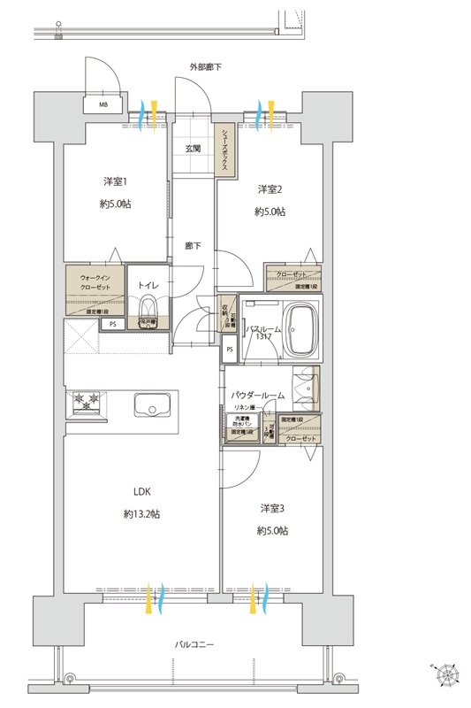
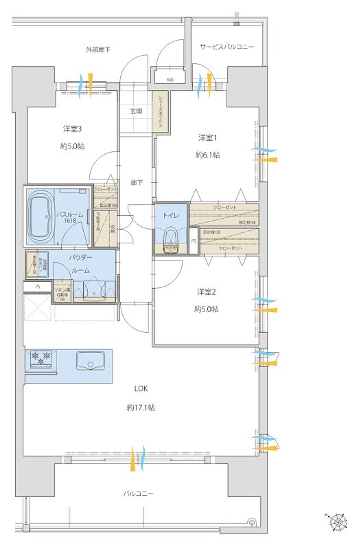
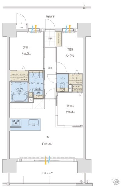
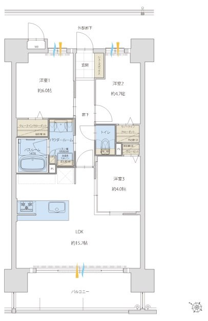
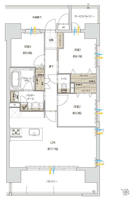
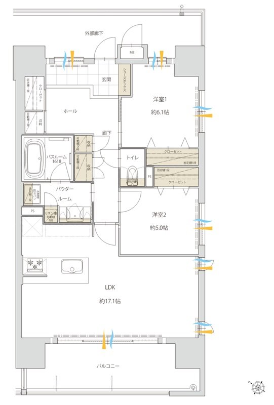
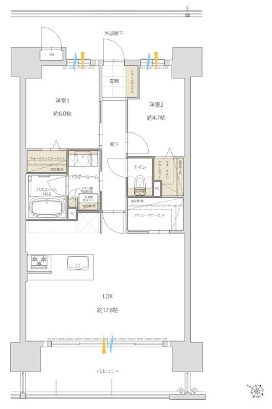
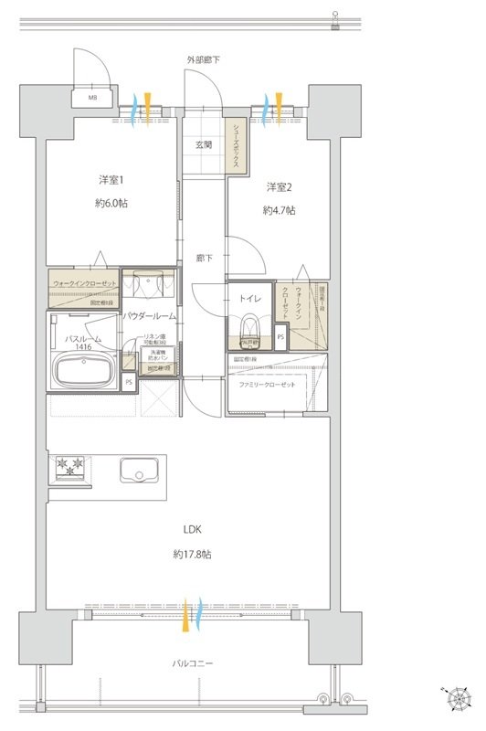
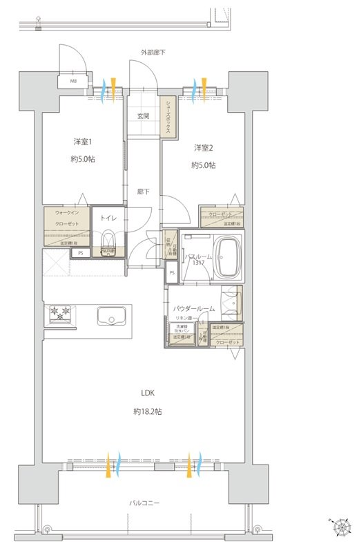
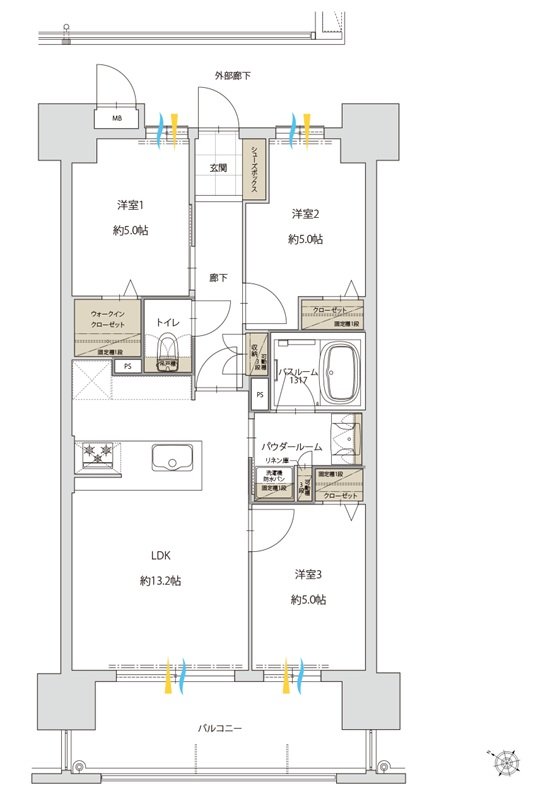
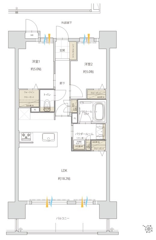
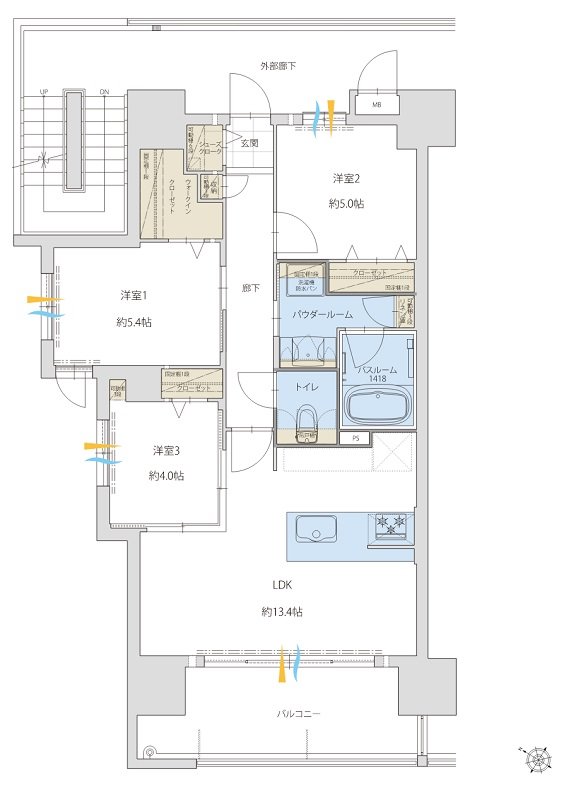
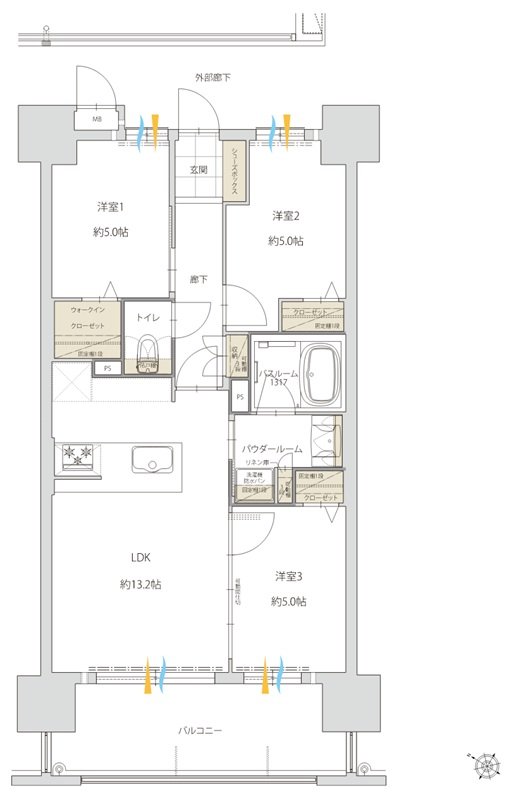
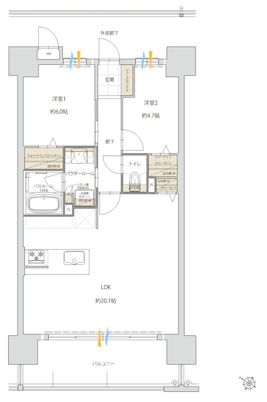
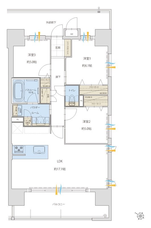
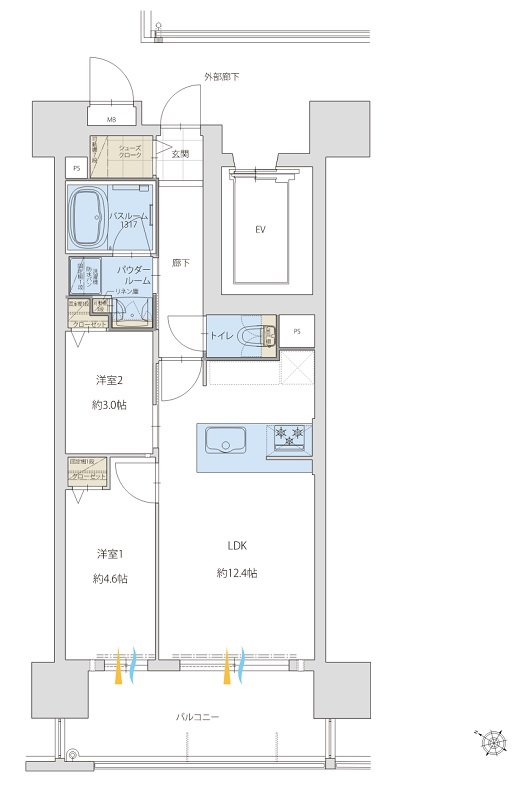
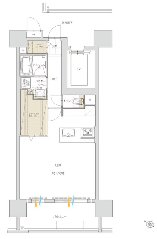
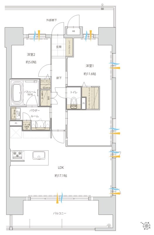
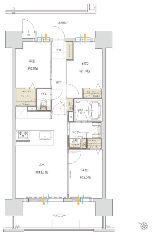
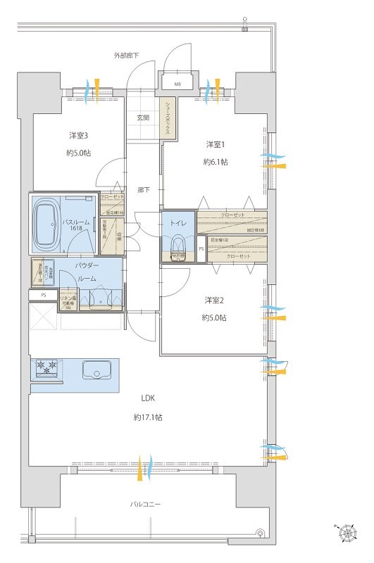
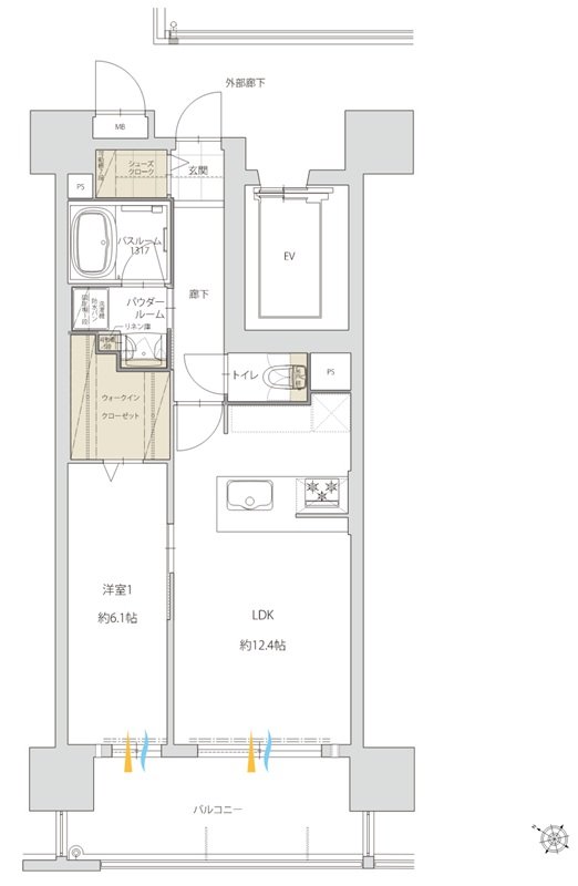
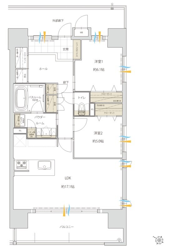
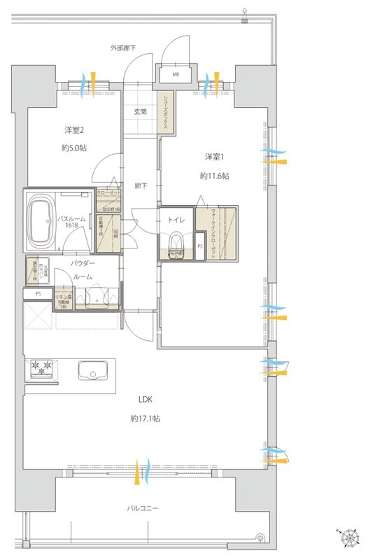
- 間取り
-
2LDK・3LDK
間取りを見る(16件)
- 販売スケジュール
-
第三期先着順申込受付開始

