間取り
この物件の詳細情報に戻る2LDK掲載2件
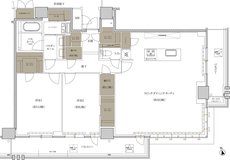
※SIC=シューズインクローゼット、WIC=ウォークインクローゼット、MB=メーターボックス
※図面は、設計段階の図面を基に描き起こしたもので、官公庁の指導、施工上等の都合により多少変更となる場合がございます。
関連する他の物件も見てみる
特徴
- 子どもと暮らす(96)
- 対面キッチン(93)
- I型キッチン(92)
- ウォークインクローゼット(90)
- 一人暮らし・二人暮らし向け(87)
- 駅近(駅徒歩5分以内・駅直結)(71)
- 床暖房(62)
- 平置き駐車場(60)
- モデルルーム公開中(58)
- シューズインクローゼット(58)
- 宅配ボックス(52)
- 南向き(51)
- 食器洗い乾燥機(食洗機)(51)
- 大規模マンション(49)
- 販売前・販売予定(49)
- 玄関からリビングが見えない間取り(43)
- 浴室暖房換気乾燥機(43)
- ZEHマンション(38)
- 24時間ゴミ出し可能(37)
- 2面バルコニー(37)
- ペット可(37)
- 東向き(33)
- 西向き(27)
- 高級マンション・ハイグレードマンション(23)
- タワーマンション・高層マンション(21)
- フラット35(20)
- ディスポーザー(20)
- パーティールーム(16)
- ゲストルーム(14)
- L型キッチン(13)
- キッズルーム(13)
- 北向き(13)
- 内廊下(9)
- コンシェルジュサービス(9)
- アイランドキッチン(8)
- フィットネスルーム(プール含む)(8)
- 天井高(2.6m以上)(3)
- カードキー(3)
地域
間取り
価格帯
不動産会社
駅
沿線

