- 価格
-
6200万円台~1億2900万円台(100万円単位)(予定)
月々の支払い額を見る
- 専有面積
-
56.15㎡~87.85㎡
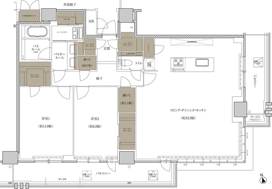
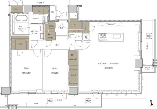
- 間取り
-
2LDK(13戸)・3LDK(12戸)
間取りを見る(7件)
- 販売スケジュール
-
2026年6月中旬 販売開始予定

