- 価格
-
5990万円~2億6980万円
月々の支払い額を見る
- 専有面積
-
56.15㎡~126.57㎡
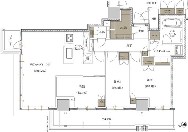
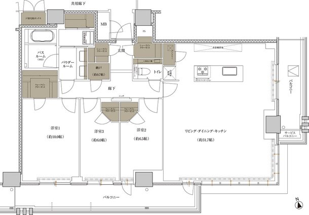
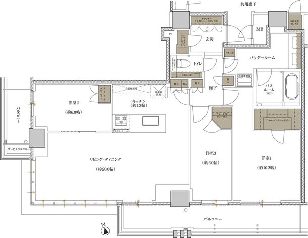
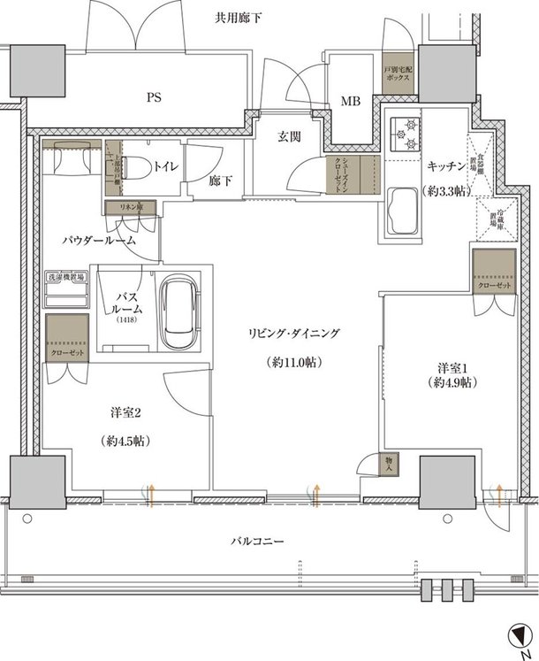
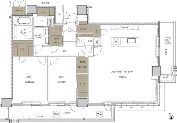
- 間取り
-
2LDK(11戸)・3LDK(18戸)
間取りを見る(12件)
- 販売スケジュール
-
【登録受付期間】2026年3月14日(土)~2026年3月22日(日)10:00~18:00(最終日は12:00まで) 【抽選日】2026年3月22日(日)13:00より

