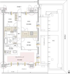
間取り
この物件の詳細情報に戻る2LDK掲載2件
3LDK掲載7件
WTC:ウォークスルークローゼット
WIC:ウォークインクローゼット
SIC:シューズインクローゼット
PS:パイプスペース
MB:メーターボックス
TR:トランクルーム
N=納戸
※掲載の間取り図は設計図書を基に描き起こしたもので実際と多少異なる場合があります。
※間取り図内において、設備の下がり天井や梁の表記はしておりません。
※すべての居室には、床面において50LX以上の照度を確保できる照明機器が必要となります。
関連する他の物件も見てみる
特徴
- 対面キッチン(31)
- 子どもと暮らす(30)
- I型キッチン(30)
- 一人暮らし・二人暮らし向け(29)
- ウォークインクローゼット(29)
- 可変式間仕切り(25)
- シューズインクローゼット(23)
- 宅配ボックス(21)
- 床暖房(21)
- モデルルーム公開中(20)
- 食器洗い乾燥機(食洗機)(19)
- 西向き(19)
- 玄関からリビングが見えない間取り(18)
- 南向き(18)
- ペット可(16)
- 浴室暖房換気乾燥機(16)
- 駅近(駅徒歩5分以内・駅直結)(15)
- 東向き(14)
- 2面バルコニー(13)
- 24時間ゴミ出し可能(13)
- 高級マンション・ハイグレードマンション(13)
- 大規模マンション(10)
- ラウンジ(10)
- スロップシンク(9)
- 出入口が2か所以上あるキッチン(9)
- 広いリビング(8)
- フラット35(7)
- トランクルーム(7)
- 電気自動車対応(7)
- L型キッチン(7)
- 北向き(5)
- ゲストルーム(4)
- ディスポーザー(4)
- 中庭(パティオ)(3)
- コンシェルジュサービス(3)
- パーティールーム(3)
- カードキー(2)
- テレワーク・在宅勤務におすすめ(2)
地域
間取り
価格帯
不動産会社
駅
沿線

