- 価格
-
6298万円~2億9800万円
月々の支払い額を見る
- 専有面積
-
64.01㎡~159.67㎡
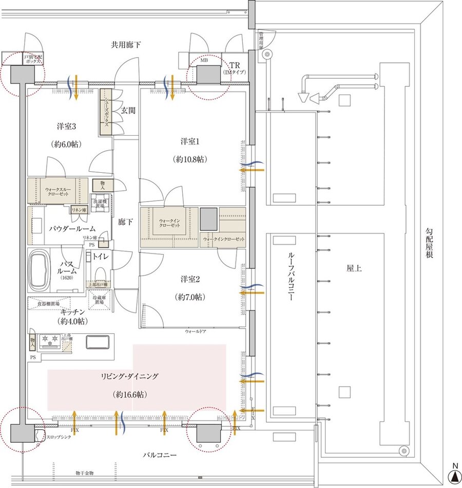
- 間取り
-
2LDK(7戸)・3LDK(22戸)
間取りを見る(9件)
- 販売スケジュール
-
先着順申込受付中

