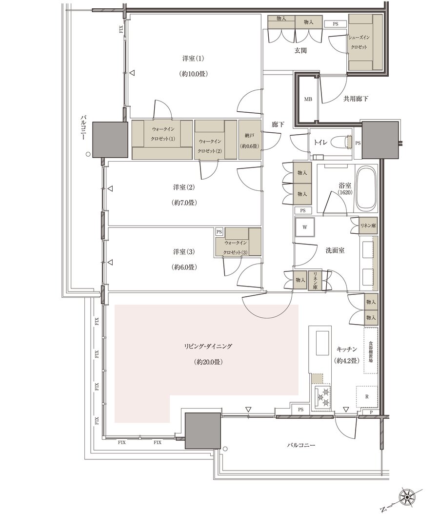
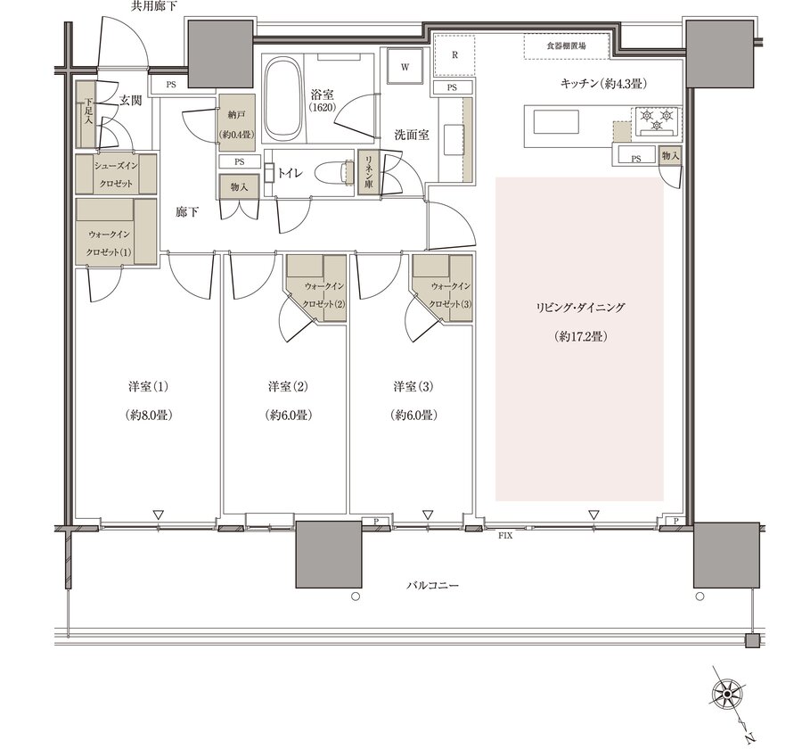
間取り
この物件の詳細情報に戻る〜1LDK(1R・1K・1DK含む)掲載3件
2LDK掲載2件
3LDK掲載18件
※WIC:ウォークインクロゼット、WIL:ウォークインリネン庫、SIC:シューズインクロゼット、WIP:ウォークインパントリー、N:納戸
※住戸により仕様・形状が異なる場合がございます。
※掲載の間取り図面は設計段階のもので、変更する場合がございます。
※バルコニー手摺りの仕様および形状は階数によって異なります。
※バルコニーの使用については管理規約等に従っていただきます。詳しくは係員にお問い合わせください。
※プレミアムプランは建具・床等の内装や設備機器等の一部をグレードアップした住戸となります。
関連する他の物件も見てみる
特徴
- 対面キッチン(42)
- I型キッチン(42)
- 子どもと暮らす(41)
- ウォークインクローゼット(40)
- 床暖房(39)
- 可変式間仕切り(38)
- 一人暮らし・二人暮らし向け(33)
- 食器洗い乾燥機(食洗機)(32)
- 浴室暖房換気乾燥機(31)
- モデルルーム公開中(31)
- 平置き駐車場(30)
- シューズインクローゼット(29)
- 玄関からリビングが見えない間取り(28)
- 24時間ゴミ出し可能(27)
- 販売前・販売予定(25)
- 大規模マンション(25)
- 防災設備(24)
- ラウンジ(23)
- 2面バルコニー(21)
- ディスポーザー(19)
- 西向き(17)
- 南西向き(14)
- 南東向き(13)
- ゲストルーム(10)
- 耐震・免震・制振(8)
- キッズルーム(7)
- 広いリビング(7)
- 高級マンション・ハイグレードマンション(6)
- 自走式駐車場(6)
- 北向き(5)
- アイランドキッチン(5)
- タワーマンション・高層マンション(4)
- 内廊下(4)
- 24時間有人管理(2)
地域
間取り
価格帯
不動産会社
駅
沿線

