- 価格
-
価格未定(予定)
- 専有面積
-
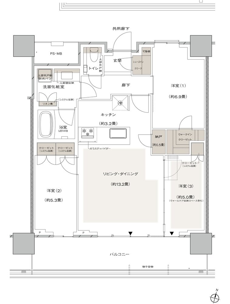
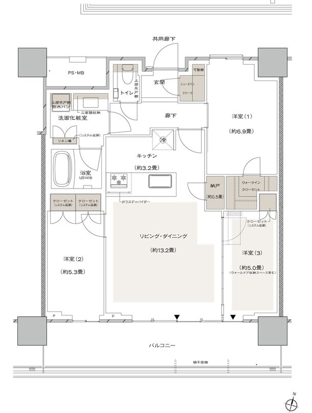
40.43㎡~76.23㎡
- 間取り
-
1LDK ~ 3LDK
間取りを見る(6件)
- 販売スケジュール
-
2026年1月中旬 販売開始予定

