- 価格
-
5640万円~1億6900万円
月々の支払い額を見る
- 専有面積
-
73.16㎡~113.16㎡
- 間取り
-
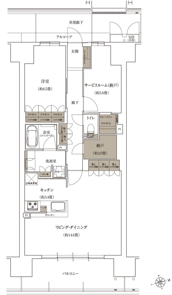
2LD+N (納戸)~3LDK+N(納戸)
間取りを見る(5件)
- 販売スケジュール
-
先着順申込み受付中

