クラブスタイル 和白駅前シーサイド 間取り Aタイプ(2F~6F)
タイプ

Aタイプ(2F~6F)

間取り

3LDK+2SCL+pantry

専有面積

70.03㎡

バルコニー面積

17.95㎡

  • 出入口が2か所以上あるキッチン
  • 2面バルコニー
  • スロップシンク
  • 南西向き
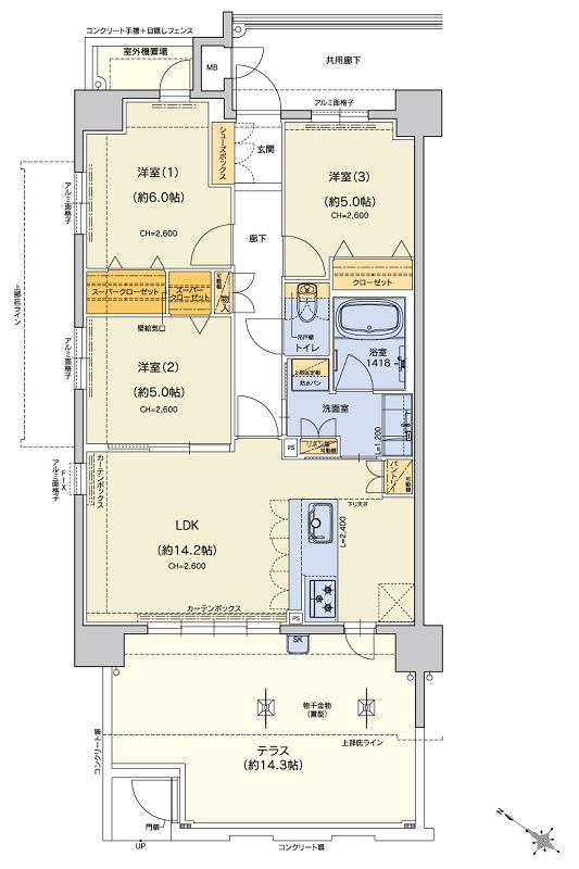
クラブスタイル 和白駅前シーサイド 間取り Atタイプ
タイプ

Atタイプ

間取り

3LDK+2SCL+pantry+terrace

専有面積

70.03㎡

バルコニー面積

-

備考

テラス面積:23.32㎡
室外機置場面積:2.25㎡

  • 出入口が2か所以上あるキッチン
  • スロップシンク
  • テラス
  • 南西向き
クラブスタイル 和白駅前シーサイド 間取り Bタイプ
タイプ

Bタイプ

間取り

3LDK+WIC+SCL

専有面積

66.27㎡

バルコニー面積

13.2㎡

  • ウォークインクローゼット
  • スロップシンク
  • 南西向き
クラブスタイル 和白駅前シーサイド 間取り Btタイプ
タイプ

Btタイプ

間取り

3LDK+WIC+SCL+terrace

専有面積

66.27㎡

バルコニー面積

-

備考

テラス面積:24.58㎡

  • ウォークインクローゼット
  • スロップシンク
  • テラス
  • 南西向き
クラブスタイル 和白駅前シーサイド 間取り Cタイプ(2F~7F)
タイプ

Cタイプ(2F~7F)

間取り

3LDK+2SCL

専有面積

68.31㎡

バルコニー面積

13.6㎡

  • 可変式間仕切り
  • スロップシンク
  • 南西向き
クラブスタイル 和白駅前シーサイド 間取り Dタイプ
タイプ

Dタイプ

間取り

3LDK

専有面積

64.18㎡

バルコニー面積

12.8㎡

  • 浴室に窓
  • スロップシンク
  • 南西向き
クラブスタイル 和白駅前シーサイド 間取り Eタイプ
タイプ

Eタイプ

間取り

3LDK+2SCL+SIC

専有面積

72.23㎡

バルコニー面積

15.23㎡

  • 玄関からリビングが見えない間取り
  • 可変式間仕切り
  • シューズインクローゼット
  • 浴室に窓
  • 2面バルコニー
  • スロップシンク
  • 南西向き

このページの一番上へ