- 価格
-
3600万円~4440万円
月々の支払い額を見る
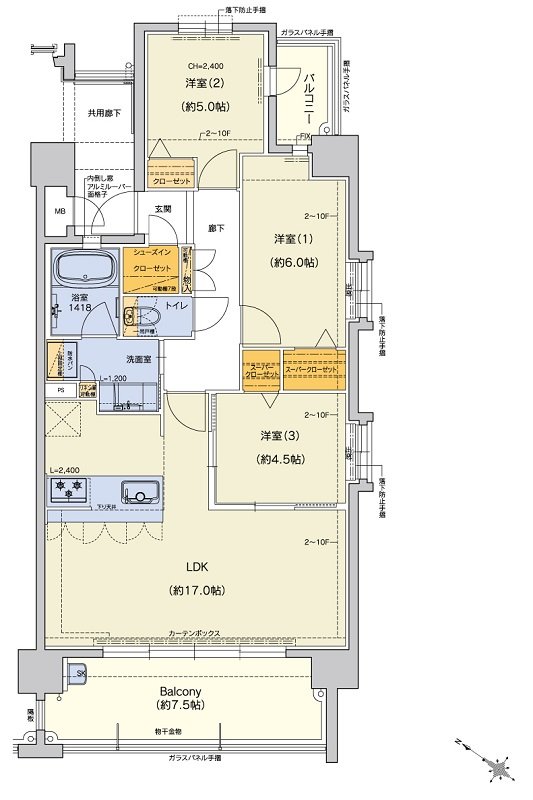
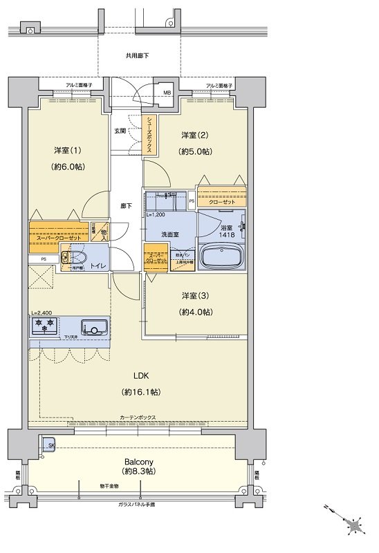
- 専有面積
-
64.18㎡~72.23㎡
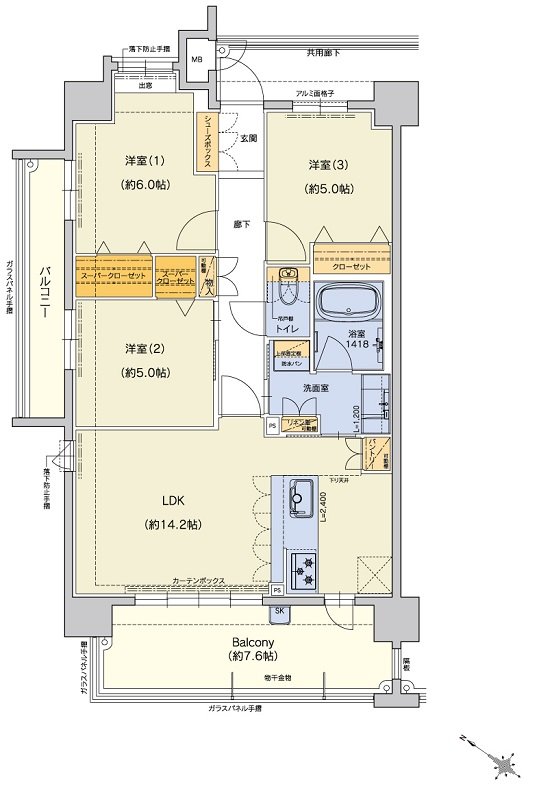
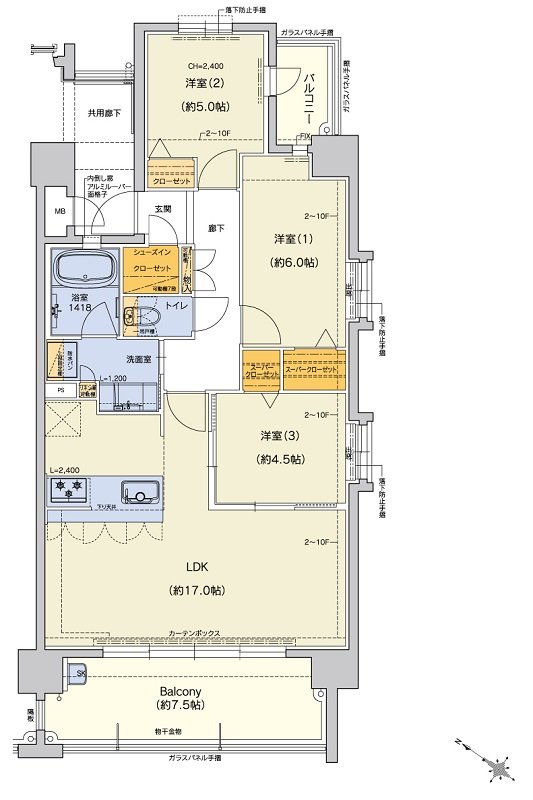
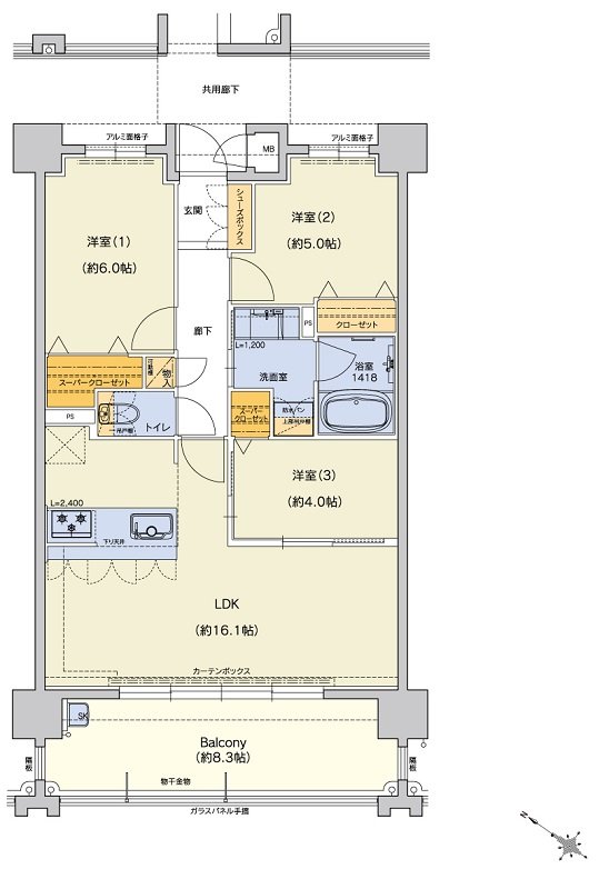
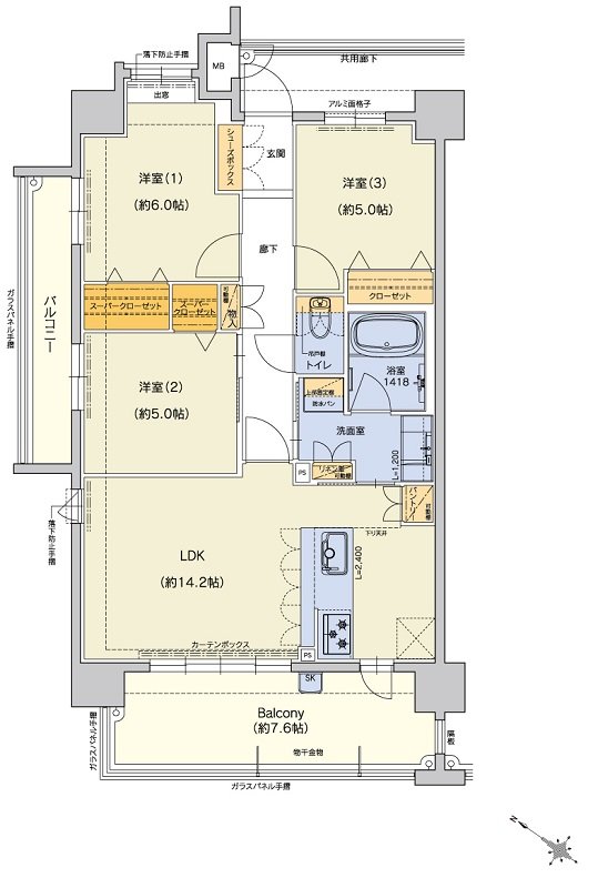
- 間取り
-
3LDK
間取りを見る(7件)
- 販売スケジュール
-
先着順申込み受付中

