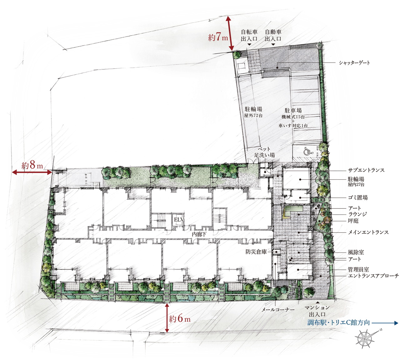
リーフィアレジデンス調布小島町 間取り Ft type
タイプ

Ft type

間取り

2LDK+S+N+WIC

専有面積

76.93㎡

バルコニー面積

-

備考

テラス(1)面積:9.70㎡
テラス(2)面積:8.10㎡
宅配BOX面積:0.45㎡
※専有面積にトランクルーム面積0.39㎡含む

  • 玄関からリビングが見えない間取り
  • ウォークインクローゼット
  • テラス
  • トランクルーム
  • 南東向き
リーフィアレジデンス調布小島町 間取り J type
タイプ

J type

間取り

1LDK+WIC

専有面積

55.46㎡

バルコニー面積

10.94㎡

備考

宅配BOX面積:0.42㎡
※専有面積にトランクルーム面積0.36㎡含む

  • ウォークインクローゼット
  • 浴室に窓
  • トランクルーム

このページの一番上へ