- 価格
-
3140万円~6690万円
月々の支払い額を見る
- 専有面積
-
61.55㎡~90.05㎡
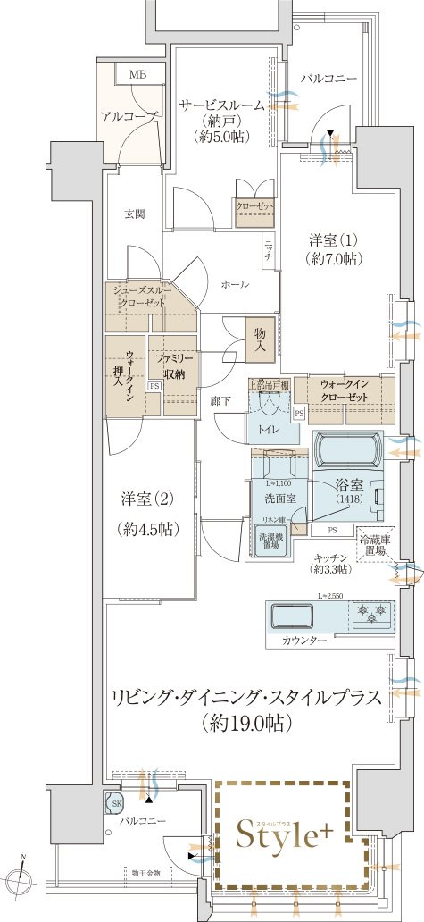
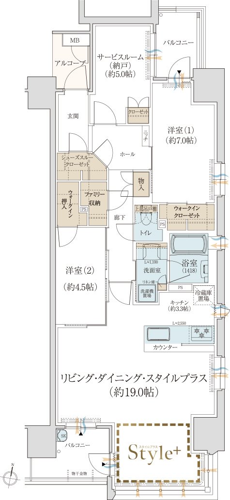
- 間取り
-
2LDK、2LDK+S、3LDK
間取りを見る(4件)
- 販売スケジュール
-
先着順申込受付中

