- 価格
-
3998万円~6248万円
月々の支払い額を見る
- 専有面積
-
58.65㎡~78.09㎡
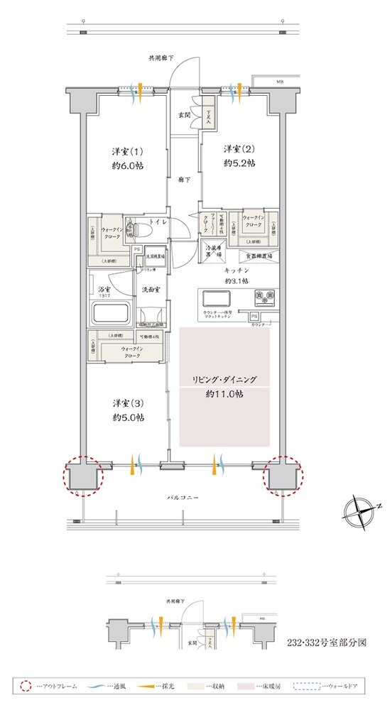
- 間取り
-
2LDK~4LDK
間取りを見る(12件)
- 販売スケジュール
-
先着順申込受付中

