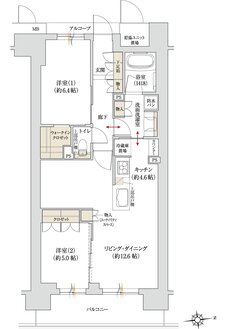
間取り
この物件の詳細情報に戻る2LDK掲載6件
※掲載の図面は計画段階のものであり、設計・施工上の理由により変更になる場合があります。
関連する他の物件も見てみる
特徴
- 対面キッチン(34)
- 子どもと暮らす(33)
- I型キッチン(33)
- 一人暮らし・二人暮らし向け(32)
- ウォークインクローゼット(32)
- 可変式間仕切り(28)
- 複数沿線利用可能(27)
- 宅配ボックス(24)
- モデルルーム公開中(22)
- 玄関からリビングが見えない間取り(22)
- 南向き(21)
- ZEHマンション(20)
- 平置き駐車場(20)
- 食器洗い乾燥機(食洗機)(20)
- エコマンション(18)
- 浴室暖房換気乾燥機(18)
- 複層ガラス(ペアガラス)(18)
- ペット可(17)
- アルコーブ(15)
- 東向き(15)
- 出入口が2か所以上あるキッチン(11)
- 省エネ対応(10)
- 大規模マンション(9)
- ペット共用施設(9)
- L型キッチン(7)
- 電気自動車対応(7)
- オンラインで相談・見学・商談可能(7)
- トランクルーム(7)
- 太陽光発電(6)
- オール電化(4)
- 南向き中心(3)
- 一括受電サービス(3)
- IHクッキングヒーター(2)
- 駐車場100%以上(2)
地域
間取り
価格帯
不動産会社
駅
沿線

