ジオ京都桂川テラス 間取り D type
タイプ

D type

間取り

2LDK+ストレージア

専有面積

59.55㎡

バルコニー面積

8.8㎡

備考

アルコーブ面積/1.70㎡
トランクルーム面積/0.70㎡

  • アルコーブ
  • 可変式間仕切り
  • トランクルーム
  • 南向き
ジオ京都桂川テラス 間取り E type
タイプ

E type

間取り

2LDK

専有面積

59.66㎡

バルコニー面積

8.05㎡

備考

アルコーブ面積:1.74㎡
トランクルーム面積:0.46㎡

  • アルコーブ
  • トランクルーム
  • 南向き
ジオ京都桂川テラス 間取り J type
タイプ

J type

間取り

1LDK+S(1〜9階)

専有面積

60.35㎡

バルコニー面積

8.48㎡

備考

アルコーブ面積/1.78㎡
※2LDK(10階)

  • アルコーブ
  • 東向き
ジオ京都桂川テラス 間取り H type
タイプ

H type

間取り

2LDK+S(1〜10階)

専有面積

64.79㎡

バルコニー面積

9.12㎡

備考

アルコーブ面積/2.37㎡
※3LDK(11階)

  • アルコーブ
  • 可変式間仕切り
  • ウォークインクローゼット
  • 南向き
ジオ京都桂川テラス 間取り K type
タイプ

K type

間取り

3LDK

専有面積

66.15㎡

バルコニー面積

9.28㎡

備考

アルコーブ面積:1.81㎡

  • アルコーブ
  • 可変式間仕切り
  • ウォークインクローゼット
  • 出入口が2か所以上あるキッチン
  • 東向き
ジオ京都桂川テラス 間取り K type Menu Plan2
タイプ

K type Menu Plan2

間取り

2LDK

専有面積

66.15㎡

バルコニー面積

9.28㎡

備考

アルコーブ面積:1.81㎡

  • アルコーブ
  • 可変式間仕切り
  • ウォークインクローゼット
  • 東向き
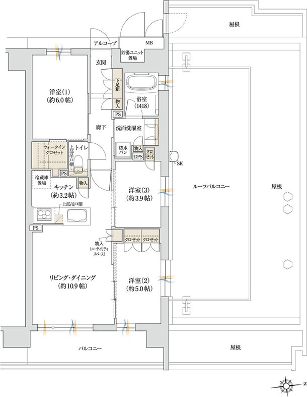
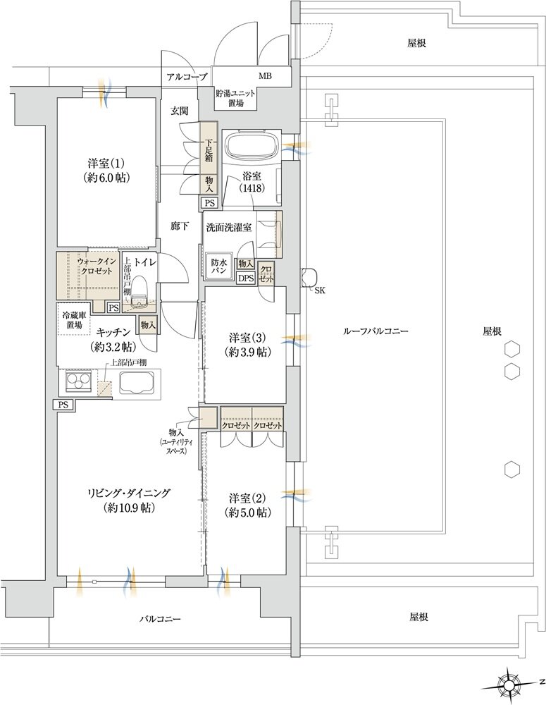
ジオ京都桂川テラス 間取り Or type
タイプ

Or type

間取り

3LDK

専有面積

66.18㎡

バルコニー面積

9.28㎡

備考

アルコーブ面積/2.09㎡
ルーフバルコニー面積/33.95㎡

  • アルコーブ
  • 可変式間仕切り
  • ウォークインクローゼット
  • 浴室に窓
  • スロップシンク
  • 東向き
ジオ京都桂川テラス 間取り I type Menu Plan2
タイプ

I type Menu Plan2

間取り

3LDK

専有面積

68.3㎡

バルコニー面積

6.48㎡

備考

アルコーブ面積/2.32㎡
サービススペース面積/1.60㎡

  • アルコーブ
  • 玄関からリビングが見えない間取り
  • 南向き
ジオ京都桂川テラス 間取り B type
タイプ

B type

間取り

3LDK

専有面積

69.66㎡

バルコニー面積

10.24㎡

  • アルコーブ
  • 南向き

このページの一番上へ