- 価格
-
価格未定(予定)
- 専有面積
-
42.10㎡~103.39㎡
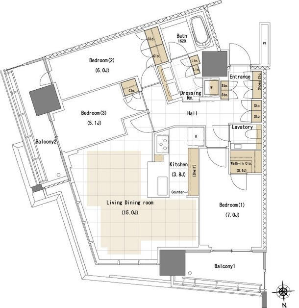
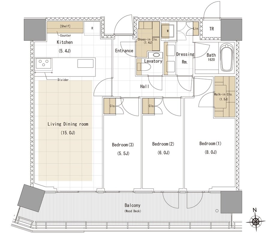
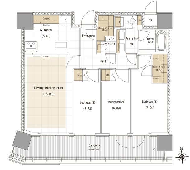
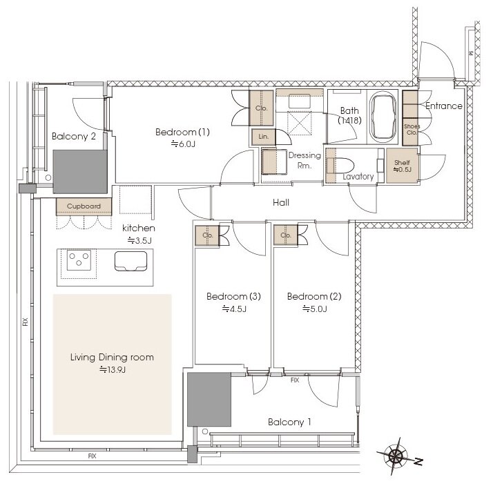
- 間取り
-
1LDK~3LDK
- 販売スケジュール
-
2026年1月下旬販売開始予定

