間取り
この物件の詳細情報に戻る2LDK掲載2件
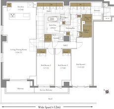
WIC=ウォークインクロゼット SIC=シューズインクローク Sto.=物入 Lin.=リネン庫 Clo.=クローク Rm.=ルーム PH=ペントハウスフロア
※掲載の絵図は図面を基に描き起こした完成予想図で、実際とは多少異なります。
※Jは畳数(約表示)です。
※掲載の図面は、諸条件により多少変更となる場合がございます。
※方位記号は若干誤差があります。正確な方位については設計図書でご確認ください。
関連する他の物件も見てみる
特徴
- 子どもと暮らす(115)
- 対面キッチン(109)
- I型キッチン(107)
- ウォークインクローゼット(106)
- 平置き駐車場(91)
- 一人暮らし・二人暮らし向け(88)
- モデルルーム公開中(87)
- 食器洗い乾燥機(食洗機)(82)
- シューズインクローゼット(61)
- 玄関からリビングが見えない間取り(60)
- 駐車場100%以上(45)
- 即入居可能(44)
- ラウンジ(37)
- 広いリビング(28)
- ディスポーザー(22)
- 高級マンション・ハイグレードマンション(16)
- アイランドキッチン(15)
- 南西向き(13)
- ルーフバルコニー(6)
- オンラインで相談・見学・商談可能(4)
- 低層マンション(3)
- 第一種低層住居専用地域(3)
地域
間取り
価格帯
不動産会社
駅
沿線

