ザ・ライオンズ覚王山 間取り Q TYPE
タイプ

Q TYPE

間取り

3LDK+SIC+3WIC

専有面積

130.02㎡

バルコニー面積

21.73㎡

備考

専用防災備蓄倉庫面積:0.55㎡

  • 玄関からリビングが見えない間取り
  • 広いリビング
  • ウォークインクローゼット
  • シューズインクローゼット
  • スロップシンク
  • 南向き
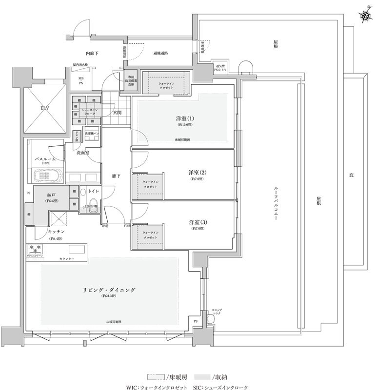
ザ・ライオンズ覚王山 間取り N TYPE
タイプ

N TYPE

間取り

3LDK+SIC+3WIC+納戸

専有面積

122.97㎡

バルコニー面積

-

備考

ルーフバルコニー面積:44.70㎡
専用防災備蓄倉庫面積:0.79㎡

  • 広いリビング
  • ウォークインクローゼット
  • ルーフバルコニー
  • スロップシンク
  • 東向き
ザ・ライオンズ覚王山 間取り J2 TYPE
タイプ

J2 TYPE

間取り

3LDK+SIC+3WIC

専有面積

109.93㎡

バルコニー面積

16.38㎡

備考

専用防災備蓄倉庫面積:0.70㎡

  • 玄関からリビングが見えない間取り
  • 広いリビング
  • ウォークインクローゼット
  • シューズインクローゼット
  • スロップシンク
  • 東向き
ザ・ライオンズ覚王山 間取り D2 TYPE
タイプ

D2 TYPE

間取り

3LDK+SIC+3WIC

専有面積

105.18㎡

バルコニー面積

14.28㎡

備考

専用防災備蓄倉庫面積:0.45㎡

  • 玄関からリビングが見えない間取り
  • 可変式間仕切り
  • 広いリビング
  • ウォークインクローゼット
  • シューズインクローゼット
  • スロップシンク
  • 南向き
ザ・ライオンズ覚王山 間取り H2 TYPE
タイプ

H2 TYPE

間取り

3LDK+WIC

専有面積

91.02㎡

バルコニー面積

12.92㎡

備考

専用防災備蓄倉庫面積:0.54㎡

  • 玄関からリビングが見えない間取り
  • 可変式間仕切り
  • 広いリビング
  • ウォークインクローゼット
  • スロップシンク
  • 南向き
ザ・ライオンズ覚王山 間取り F2 TYPE
タイプ

F2 TYPE

間取り

3LDK+WIC

専有面積

81.17㎡

バルコニー面積

12.43㎡

備考

専用防災備蓄倉庫面積:0.55㎡

  • 玄関からリビングが見えない間取り
  • 可変式間仕切り
  • 広いリビング
  • ウォークインクローゼット
  • スロップシンク
  • 南向き

このページの一番上へ