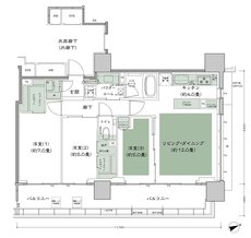
間取り
この物件の詳細情報に戻る2LDK掲載2件
N:納戸 2WIC:2ウォークインクロゼット SIC:シューズインクロゼット WIC:ウォークインクロゼット
※掲載の図面は、施工上の都合・改良等により多少変更する場合があります。あらかじめご了承ください。
※掲載の図面は本タイプの基本図面です。階数・列により間取りが一部異なる場合があります。詳細は図面集をご確認ください。
関連する他の物件も見てみる
特徴
- 子どもと暮らす(181)
- 対面キッチン(176)
- I型キッチン(175)
- ウォークインクローゼット(168)
- 一人暮らし・二人暮らし向け(167)
- 床暖房(161)
- 玄関からリビングが見えない間取り(138)
- 複数沿線利用可能(134)
- シューズインクローゼット(132)
- 可変式間仕切り(130)
- 食器洗い乾燥機(食洗機)(127)
- 宅配ボックス(117)
- 高級マンション・ハイグレードマンション(115)
- 浴室暖房換気乾燥機(113)
- 複層ガラス(ペアガラス)(104)
- モデルルーム公開中(100)
- 南向き(98)
- 2面バルコニー(98)
- 24時間ゴミ出し可能(89)
- ペット可(86)
- 西向き(80)
- ディスポーザー(76)
- 東向き(73)
- 大規模マンション(65)
- 内廊下(65)
- ラウンジ(60)
- 南東向き(40)
- ミストサウナ(40)
- 耐震・免震・制振(34)
- バリアフリー(32)
- 広いリビング(31)
- タワーマンション・高層マンション(28)
- コンシェルジュサービス(17)
- テレワーク・在宅勤務におすすめ(16)
- フィットネスルーム(プール含む)(15)
- リバーサイド・川沿い・水辺(7)
地域
間取り
価格帯
不動産会社
駅
沿線

