- 価格
-
1億1800万円~2億8900万円
月々の支払い額を見る
- 専有面積
-
43.30㎡~77.34㎡
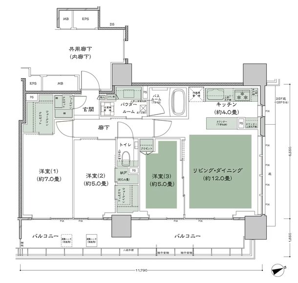
- 間取り
-
1LDK~3LDK
間取りを見る(5件)
- 販売スケジュール
-
先着順受付

