- 価格
-
7250万円~1億1900万円
月々の支払い額を見る
- 専有面積
-
65.61㎡~91.05㎡
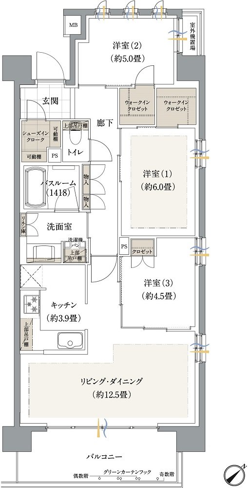
- 間取り
-
3LDK, 4LDK
間取りを見る(3件)
- 販売スケジュール
-
先着順受付中

