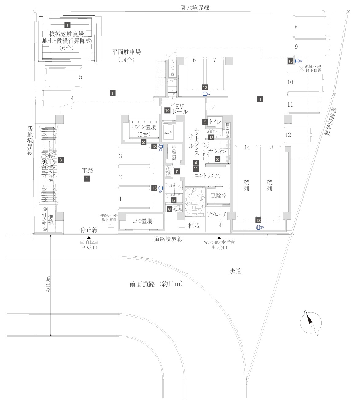
クラブスタイル 馬出フェリシア

「アットホーム」をご利用いただきありがとうございます。

誠に恐れ入りますが、お探しの物件は
掲載終了もしくは掲載を一時停止しているため、閲覧いただけません。

お手数ですが、下記よりお求めのページをお探しください。

物件名から探す

福岡県のマンション情報を

このページの一番上へ