- 価格
-
3900万円~7550万円
月々の支払い額を見る
- 専有面積
-
47.13㎡~83.17㎡
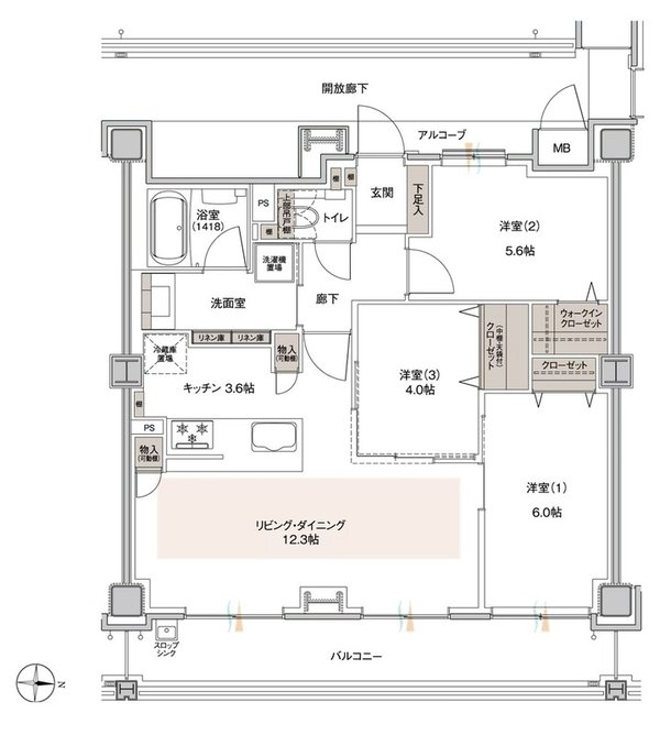
- 間取り
-
1LDK~3LDK+S
間取りを見る(6件)
- 販売スケジュール
-
先着順申込受付中

