- 価格
-
3600万円~5090万円
月々の支払い額を見る
- 専有面積
-
79.63㎡~87.81㎡
- 間取り
-
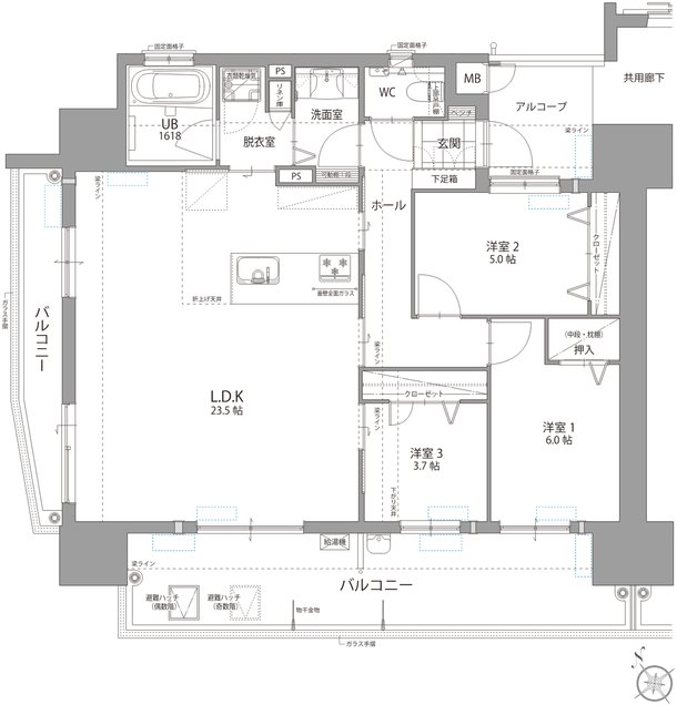
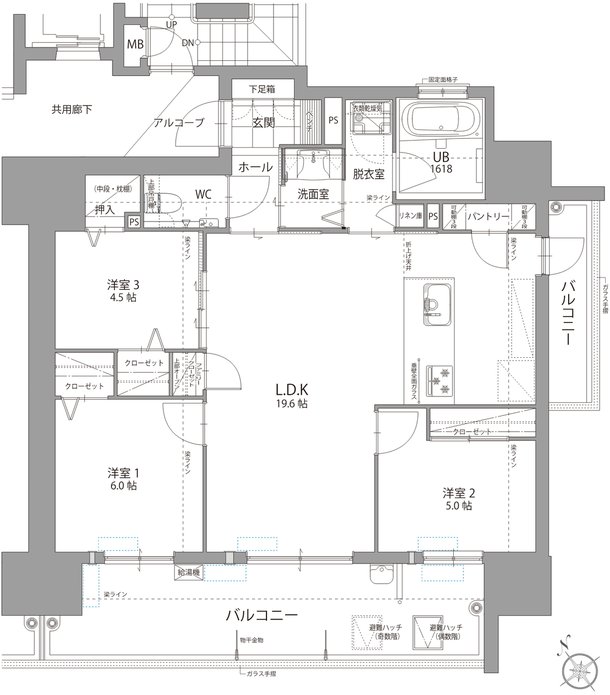
3LDK、4LDK
間取りを見る(3件)
- 販売スケジュール
-
先着順申込み受付中

