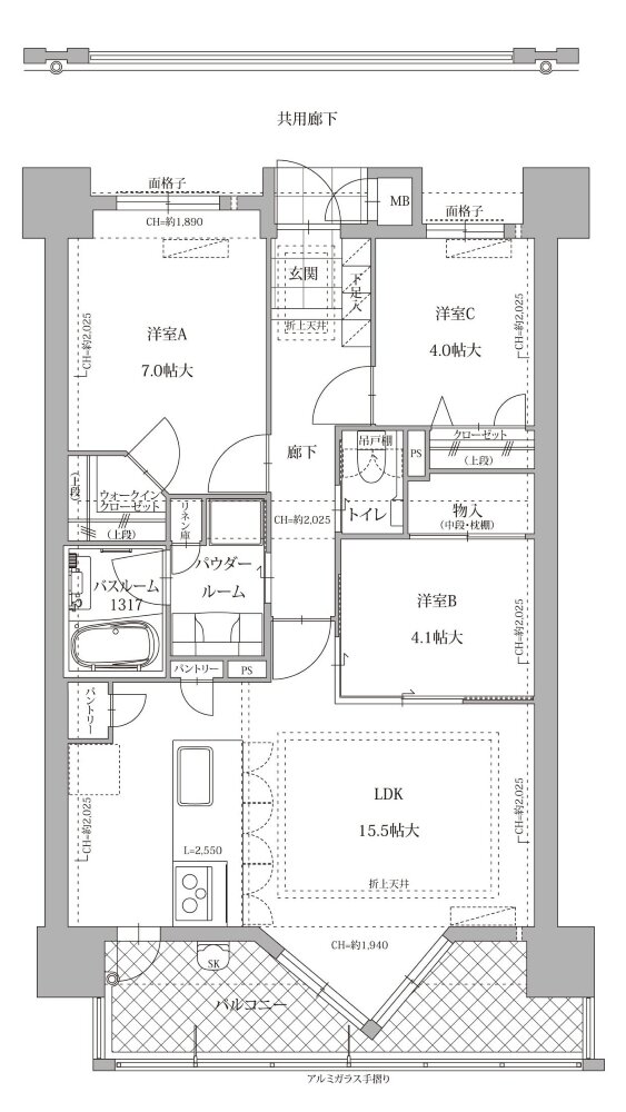
サングレート博多レクシアル 間取り C type
タイプ

C type

間取り

2LDK

専有面積

61.29㎡

バルコニー面積

11.05㎡

  • ウォークインクローゼット
  • 南東向き
サングレート博多レクシアル 間取り D type
タイプ

D type

間取り

3LDK

専有面積

69.68㎡

バルコニー面積

10.41㎡

  • 可変式間仕切り
  • ウォークインクローゼット
  • スロップシンク

このページの一番上へ