- 価格
-
6898万円
月々の支払い額を見る
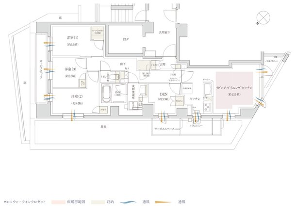
- 専有面積
-
74.59㎡
- 間取り
-
3LDK+DEN
間取りを見る(1件)
- 販売スケジュール
-
先着順申込み受付中

