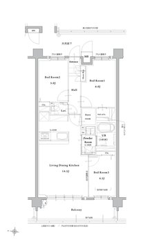
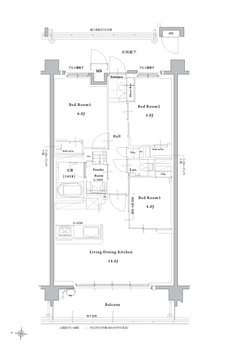
間取り
この物件の詳細情報に戻る3LDK掲載4件
※掲載の図面は、2023年11月現在のものであり、行政指導及び施工上の都合などにより、改良・変更となる場合がございます。予めご了承ください。
関連する他の物件も見てみる
特徴
- 子どもと暮らす(103)
- I型キッチン(96)
- 対面キッチン(96)
- ウォークインクローゼット(85)
- 平置き駐車場(81)
- 駐車場100%以上(70)
- 食器洗い乾燥機(食洗機)(69)
- モデルルーム公開中(68)
- 浴室暖房換気乾燥機(67)
- 二重床/二重天井(66)
- 可変式間仕切り(65)
- スロップシンク(58)
- 玄関からリビングが見えない間取り(57)
- 出入口が2か所以上あるキッチン(49)
- エコマンション(46)
- 浴室に窓(43)
- 駅近(駅徒歩5分以内・駅直結)(40)
- 南向き(38)
- 一括受電サービス(30)
- 即入居可能(29)
- 西向き(6)
地域
間取り
価格帯
不動産会社
駅
沿線

