- 価格
-
4400万円~3億1000万円
月々の支払い額を見る
- 専有面積
-
38.61㎡~116.04㎡
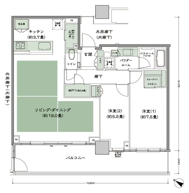
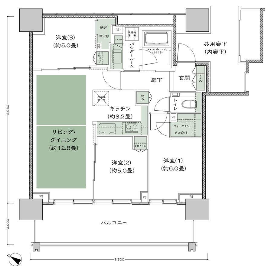
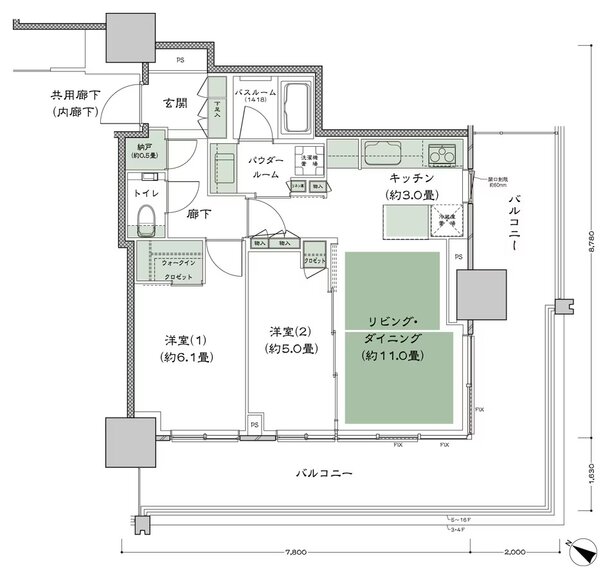
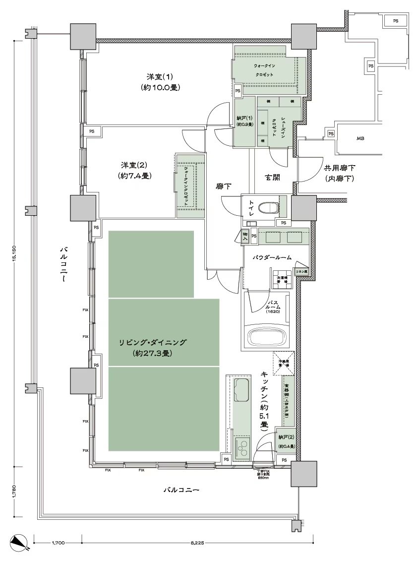
- 間取り
-
1LDK~3LDK
間取りを見る(18件)
- 販売スケジュール
-
先着順受付中

