間取り
この物件の詳細情報に戻る2LDK掲載3件
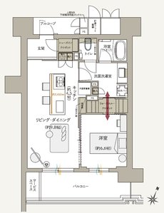
※掲載の図面は、計画段階の図面を基に描いたもので、今後変更になる場合があります。また、家具はレイアウトの例を示したもので家具の形状やサイズにより実際とは異なります。家具は販売価格に含まれません。あらかじめご了承ください。
関連する他の物件も見てみる
特徴
- 子どもと暮らす(67)
- I型キッチン(63)
- 対面キッチン(63)
- 一人暮らし・二人暮らし向け(58)
- ウォークインクローゼット(57)
- アルコーブ(49)
- 複数沿線利用可能(47)
- モデルルーム公開中(40)
- 可変式間仕切り(38)
- 2面バルコニー(34)
- 南向き(34)
- シューズインクローゼット(33)
- 駅近(駅徒歩5分以内・駅直結)(32)
- 玄関からリビングが見えない間取り(31)
- ZEHマンション(28)
- 高級マンション・ハイグレードマンション(19)
- 即入居可能(17)
- 全戸南向き(17)
- 南東向き(13)
- アイランドキッチン(8)
- 南向き中心(6)
- オール電化(5)
- カスタマイズ/プランセレクト可能(4)
- 一括受電サービス(2)
地域
間取り
価格帯
不動産会社
駅
沿線

