- 価格
-
5110万円~9470万円
月々の支払い額を見る
- 専有面積
-
52.56㎡~78.11㎡
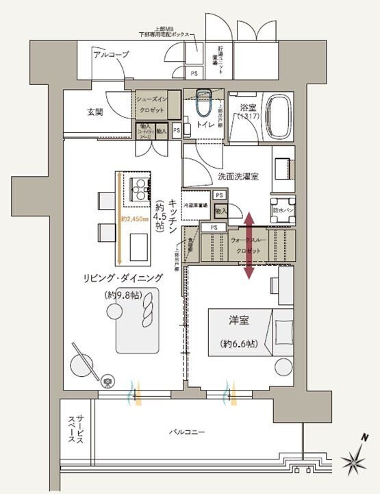
- 間取り
-
1LDK~3LDK
間取りを見る(3件)
- 販売スケジュール
-
先着順申込受付中

