- 価格
-
3960万円~5220万円
月々の支払い額を見る
- 専有面積
-
76.77㎡~86.22㎡
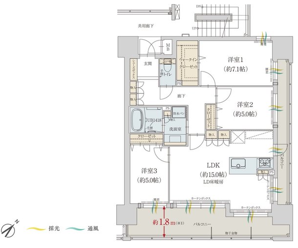
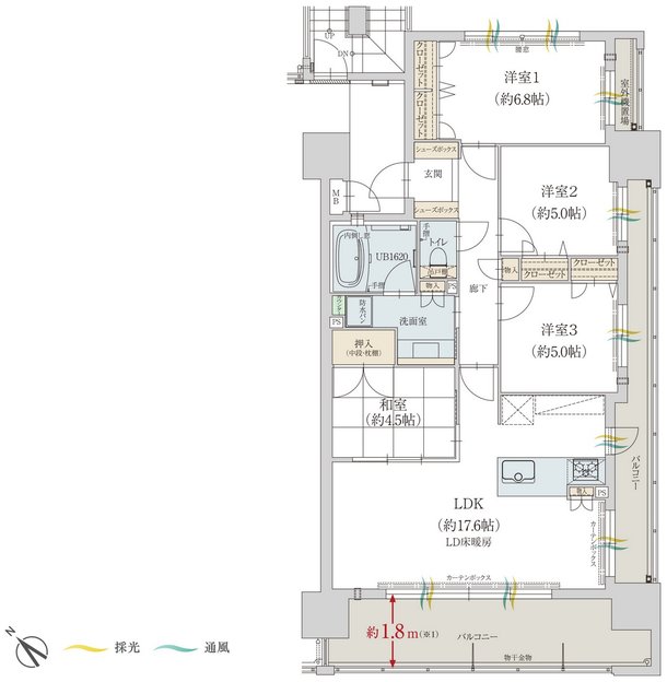
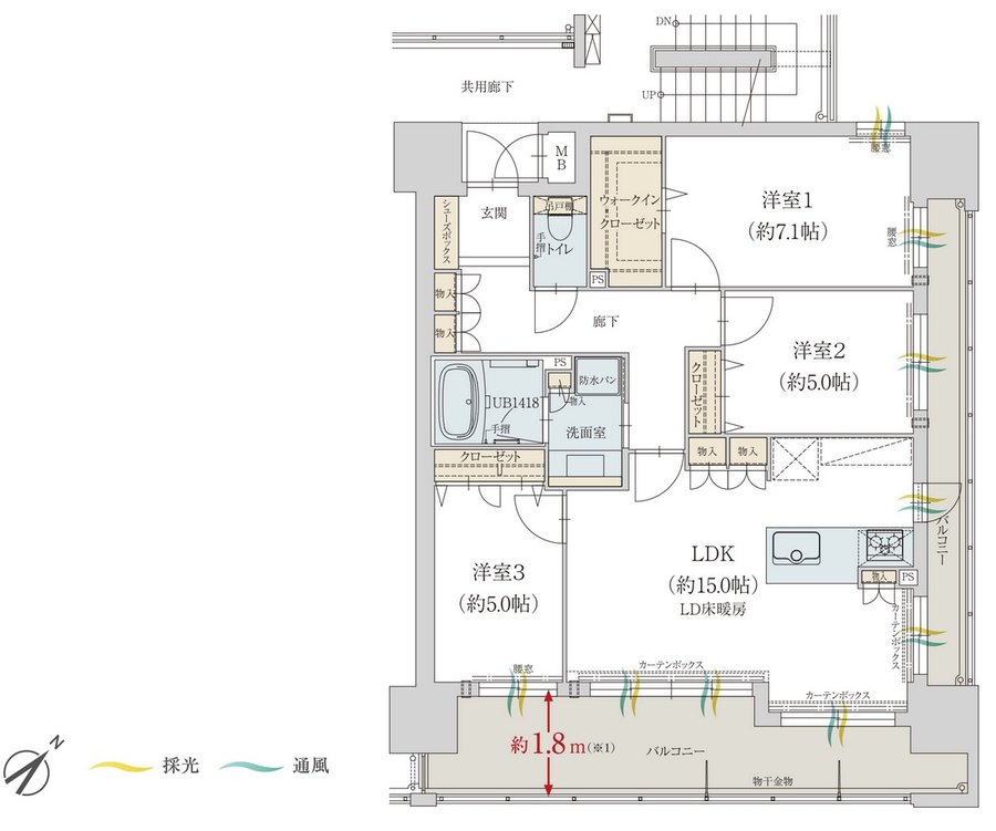
- 間取り
-
3LDK・4LDK
間取りを見る(4件)
- 販売スケジュール
-
先着順申込受付中

