- 価格
-
価格未定(予定)
- 専有面積
-
55.76㎡~85.36㎡
- 間取り
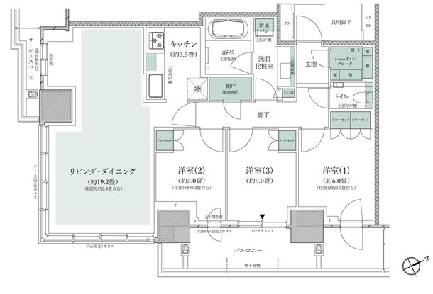
-
2LDK ・ 3LDK
間取りを見る(2件)
- 販売スケジュール
-
2025年10月下旬 販売開始予定

