MJR熊本ゲートタワー 間取り E-B type
タイプ

E-B type

間取り

2LDK+2SR+WIC+SIC

専有面積

75.74㎡

バルコニー面積

15.52㎡

  • ポーチ
  • 可変式間仕切り
  • ウォークインクローゼット
  • シューズインクローゼット
  • 南向き
MJR熊本ゲートタワー 間取り E-C5 type
タイプ

E-C5 type

間取り

2LDK+WIC+SIC

専有面積

112.16㎡

バルコニー面積

38.18㎡

備考

※バルコニー面積は21~24F

  • ウォークインクローゼット
  • シューズインクローゼット
  • 出入口が2か所以上あるキッチン
  • 2面バルコニー
  • 南東向き
MJR熊本ゲートタワー 間取り E-E type(21~29F)
タイプ

E-E type(21~29F)

間取り

3LDK+SR+SIC

専有面積

100.61㎡

バルコニー面積

-

備考

バルコニー面積(21~25F):33.99㎡
バルコニー面積(26~29F):35.55㎡

  • ポーチ
  • 玄関からリビングが見えない間取り
  • シューズインクローゼット
  • 2面バルコニー
  • 東向き
MJR熊本ゲートタワー 間取り E-F type(21~29F)
タイプ

E-F type(21~29F)

間取り

2LDK+SR+2WIC+SIC+PAN

専有面積

73.12㎡

バルコニー面積

13.91㎡

  • ポーチ
  • 玄関からリビングが見えない間取り
  • 可変式間仕切り
  • ウォークインクローゼット
  • シューズインクローゼット
MJR熊本ゲートタワー 間取り E-G type(21~29F)
タイプ

E-G type(21~29F)

間取り

2LDK+SR+WIC+SIC

専有面積

75.05㎡

バルコニー面積

-

備考

バルコニー面積(21~25F):37.73㎡
バルコニー面積(26~29F):39.30㎡

  • ポーチ
  • 玄関からリビングが見えない間取り
  • 可変式間仕切り
  • ウォークインクローゼット
  • シューズインクローゼット
  • 2面バルコニー
  • 西向き
MJR熊本ゲートタワー 間取り U-A type(2~20F)
タイプ

U-A type(2~20F)

間取り

3LDK+WIC

専有面積

80.19㎡

バルコニー面積

-

備考

バルコニー面積(2~5F):32.71㎡
バルコニー面積(6F):31.31㎡
バルコニー面積(7~20F):29.74㎡

  • ポーチ
  • 玄関からリビングが見えない間取り
  • ウォークインクローゼット
  • 2面バルコニー
  • 南向き
MJR熊本ゲートタワー 間取り U-C type(2~20F)
タイプ

U-C type(2~20F)

間取り

3LDK+SR+SIC

専有面積

87.16㎡

バルコニー面積

-

備考

バルコニー面積(2~5F):35.68㎡
バルコニー面積(6F):34.28㎡
バルコニー面積(7~20F):32.71㎡

  • ポーチ
  • 玄関からリビングが見えない間取り
  • シューズインクローゼット
  • 2面バルコニー
  • 東向き
MJR熊本ゲートタワー 間取り U-D type(2~20F)
タイプ

U-D type(2~20F)

間取り

2LDK+STO+WIC+SIC

専有面積

66.64㎡

バルコニー面積

12.64㎡

  • 可変式間仕切り
  • ウォークインクローゼット
  • シューズインクローゼット
  • 東向き
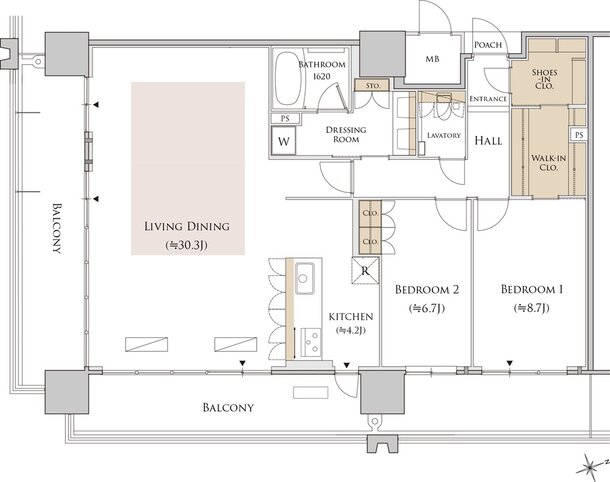
MJR熊本ゲートタワー 間取り U-E type(2~20F)
タイプ

U-E type(2~20F)

間取り

2LDK+SIC

専有面積

60.38㎡

バルコニー面積

12.64㎡

  • ポーチ
  • 可変式間仕切り
  • シューズインクローゼット
  • 東向き
MJR熊本ゲートタワー 間取り U-F type(2~19F)
タイプ

U-F type(2~19F)

間取り

3LDK+SR+WIC+SIC

専有面積

83.22㎡

バルコニー面積

-

備考

バルコニー面積:28.13㎡(2~5F)/26.73㎡(6F)/25.16㎡(7~19F)

  • ポーチ
  • 玄関からリビングが見えない間取り
  • ウォークインクローゼット
  • シューズインクローゼット
  • 2面バルコニー
  • 東向き

このページの一番上へ