クレストシティ鎌倉大船サウス 間取り A-C type
タイプ

A-C type

間取り

3LDK+BW+WIC+MS

専有面積

77.82㎡

バルコニー面積

10.1㎡

  • 可変式間仕切り
  • ウォークインクローゼット
  • 南西向き
  • フラットフロア
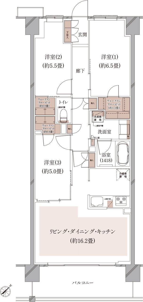
クレストシティ鎌倉大船サウス 間取り A-E type
タイプ

A-E type

間取り

3LDK+BW+2WIC

専有面積

77.82㎡

バルコニー面積

10.1㎡

  • ウォークインクローゼット
  • 南西向き
  • フラットフロア
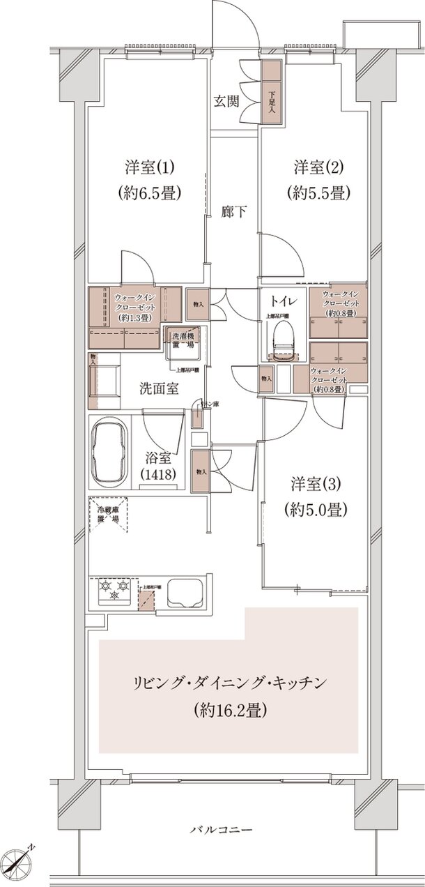
クレストシティ鎌倉大船サウス 間取り A-K type
タイプ

A-K type

間取り

3LDK+3WIC

専有面積

76.23㎡

バルコニー面積

10㎡

  • 可変式間仕切り
  • ウォークインクローゼット
  • 南西向き
  • フラットフロア
クレストシティ鎌倉大船サウス 間取り A-L type
タイプ

A-L type

間取り

3LDK+BW+WIC+MS

専有面積

77.82㎡

バルコニー面積

9.7㎡

  • 可変式間仕切り
  • ウォークインクローゼット
  • 南西向き
  • フラットフロア
クレストシティ鎌倉大船サウス 間取り B-B type
タイプ

B-B type

間取り

3LDK+2WIC+MS

専有面積

75.88㎡

バルコニー面積

10.3㎡

  • 可変式間仕切り
  • ウォークインクローゼット
  • 南西向き
  • フラットフロア
クレストシティ鎌倉大船サウス 間取り C-A type
タイプ

C-A type

間取り

3LDK+BW+WIC+MS

専有面積

85.83㎡

バルコニー面積

19㎡

備考

ポーチ面積:9.5㎡

  • ポーチ
  • 可変式間仕切り
  • ウォークインクローゼット
  • 2面バルコニー
  • L字バルコニー
  • 南東向き
  • フラットフロア
クレストシティ鎌倉大船サウス 間取り C-B type
タイプ

C-B type

間取り

3LDK+3WIC

専有面積

75.75㎡

バルコニー面積

10.2㎡

  • ウォークインクローゼット
  • 南東向き
  • フラットフロア
クレストシティ鎌倉大船サウス 間取り C-C type
タイプ

C-C type

間取り

3LDK+3WIC

専有面積

75.75㎡

バルコニー面積

10.2㎡

  • ウォークインクローゼット
  • 南東向き
  • フラットフロア
クレストシティ鎌倉大船サウス 間取り C-E type
タイプ

C-E type

間取り

3LDK+BW+2WIC

専有面積

75.07㎡

バルコニー面積

10.1㎡

  • 可変式間仕切り
  • ウォークインクローゼット
  • 南東向き
  • フラットフロア

このページの一番上へ