- 価格
-
6798万円~7318万円
月々の支払い額を見る
- 専有面積
-
71.21㎡~72.57㎡
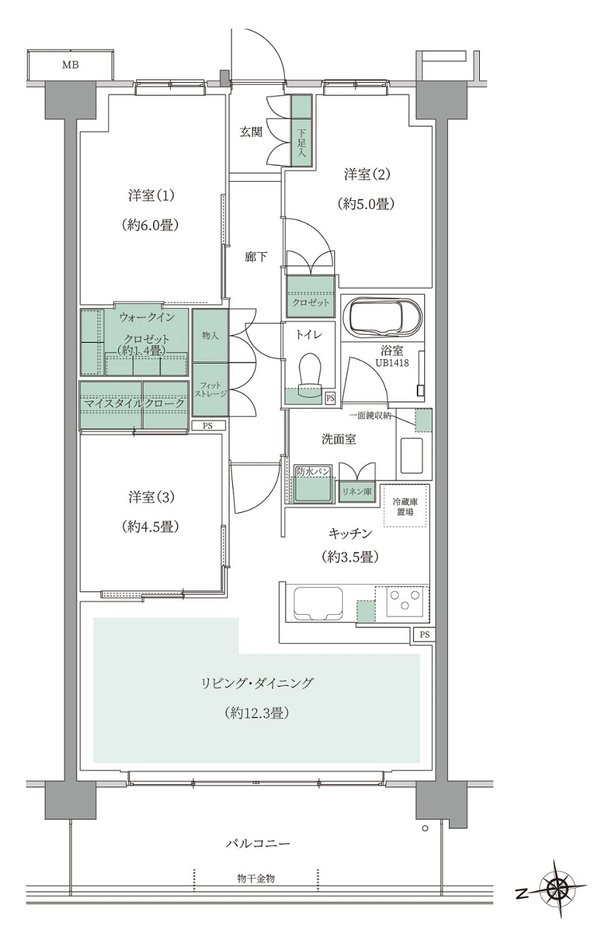
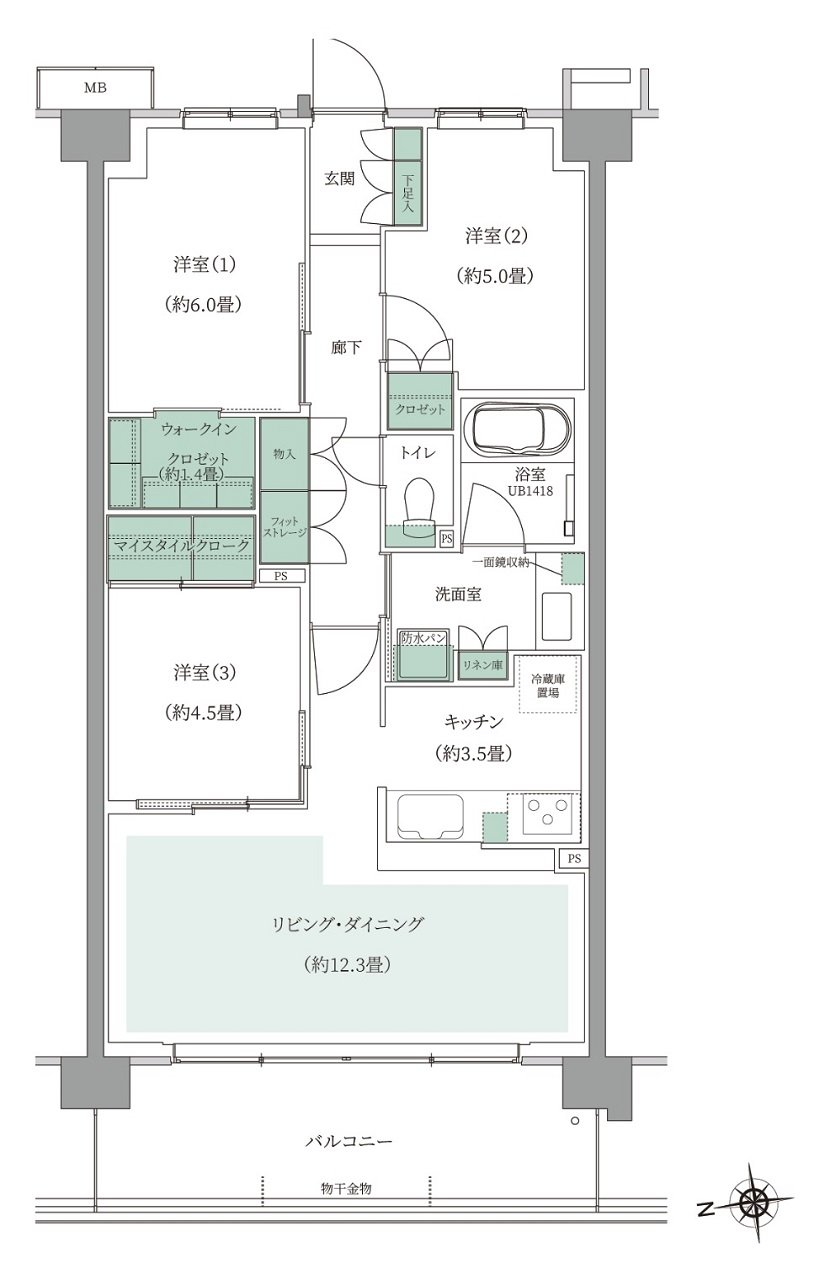
- 間取り
-
2LDK+S(納戸)~3LDK
間取りを見る(4件)
- 販売スケジュール
-
先着順申込中

