エンクレストガーデン福岡 間取り B7-2 type[B棟]
タイプ

B7-2 type[B棟]

間取り

3LDK

専有面積

59.55㎡

バルコニー面積

13.6㎡

  • 可変式間仕切り
  • 出入口が2か所以上あるキッチン
  • スロップシンク
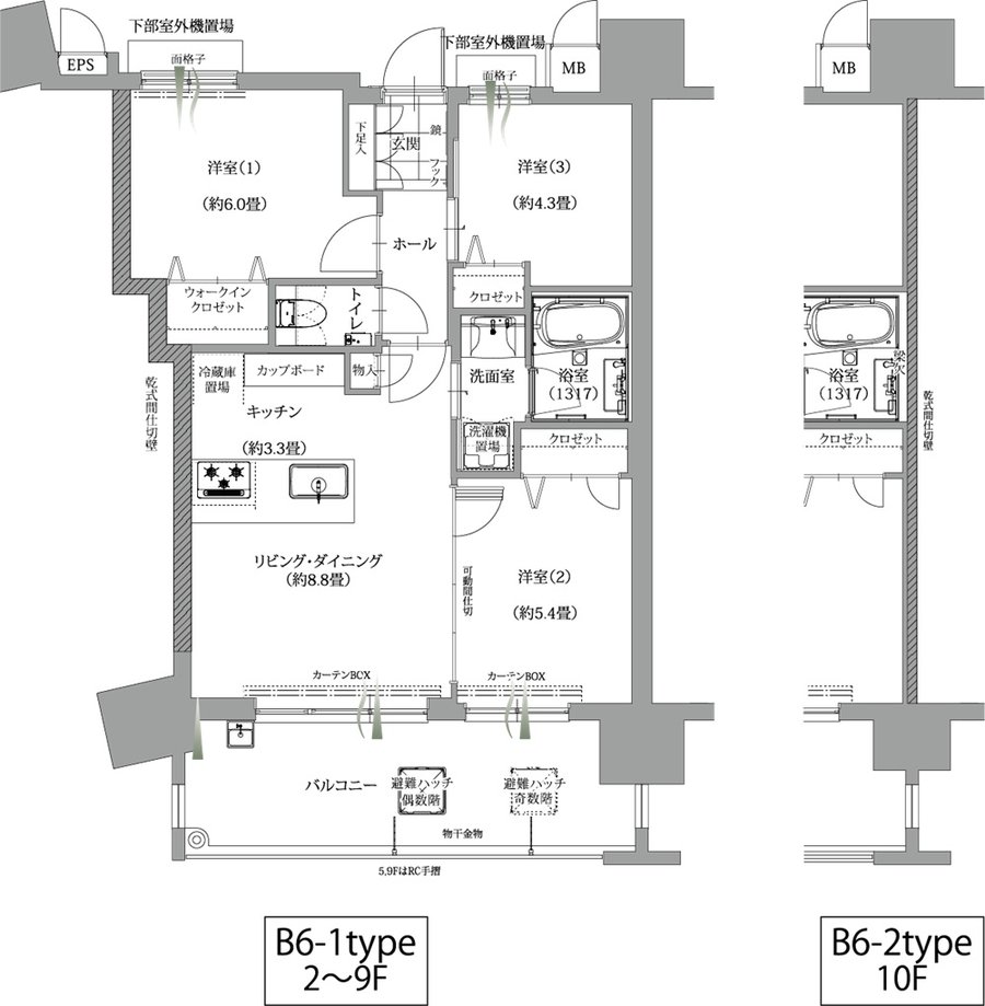
エンクレストガーデン福岡 間取り B6-1 type[B棟][2~9F]
タイプ

B6-1 type[B棟][2~9F]

間取り

3LDK

専有面積

59.88㎡

バルコニー面積

13㎡

  • ウォークインクローゼット
  • スロップシンク
  • 南東向き
エンクレストガーデン福岡 間取り B8-2[B棟][menu][6・7F]
タイプ

B8-2[B棟][menu][6・7F]

間取り

2LDK+WIC

専有面積

62.64㎡

バルコニー面積

14.4㎡

  • ウォークインクローゼット
  • スロップシンク
エンクレストガーデン福岡 間取り B2 type[B棟][2~12F]
タイプ

B2 type[B棟][2~12F]

間取り

3LDK+WTC

専有面積

65.25㎡

バルコニー面積

15㎡

  • 出入口が2か所以上あるキッチン
  • 浴室に窓
  • 広いバルコニー
  • スロップシンク
  • 南西向き
エンクレストガーデン福岡 間取り C2 type[C棟]
タイプ

C2 type[C棟]

間取り

3LDK+WIC

専有面積

71.34㎡

バルコニー面積

16.4㎡

  • 可変式間仕切り
  • ウォークインクローゼット
  • スロップシンク
エンクレストガーデン福岡 間取り C1 type[C棟][2~14F]
タイプ

C1 type[C棟][2~14F]

間取り

3LDK+WIC

専有面積

76.92㎡

バルコニー面積

23.05㎡

備考

室外機置場面積:3.86㎡

  • 玄関からリビングが見えない間取り
  • ウォークインクローゼット
  • 出入口が2か所以上あるキッチン
  • スロップシンク
  • 南東向き
エンクレストガーデン福岡 間取り B5-1 type[B棟]
タイプ

B5-1 type[B棟]

間取り

3LDK+SC+WIC

専有面積

77.59㎡

バルコニー面積

24.33㎡

  • 玄関からリビングが見えない間取り
  • 可変式間仕切り
  • ウォークインクローゼット
  • スロップシンク
エンクレストガーデン福岡 間取り C7 type[C棟][2~14F]
タイプ

C7 type[C棟][2~14F]

間取り

4LDK

専有面積

82.67㎡

バルコニー面積

23.25㎡

備考

室外機置場面積:3.22㎡

  • 玄関からリビングが見えない間取り
  • 出入口が2か所以上あるキッチン
  • スロップシンク
  • 南東向き

このページの一番上へ