- 価格
-
4330万円~6860万円
月々の支払い額を見る
- 専有面積
-
59.16㎡~82.67㎡
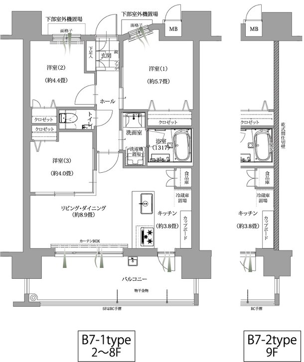
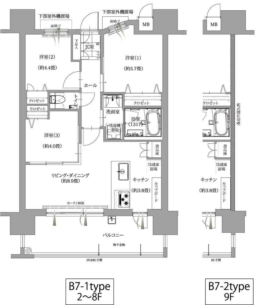
- 間取り
-
2LDK~4LDK
間取りを見る(7件)
- 販売スケジュール
-
〇先着順受付中 ※先着順のため、ご希望住戸が販売済みの場合はご容赦ください。

