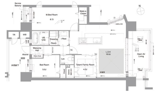
アーティックス夜宮パークアヴェニュー 間取り A type
タイプ

A type

間取り

4LDK

専有面積

87.89㎡

バルコニー面積

-

備考

バルコニー面積:26.48㎡(2F)、20.79㎡(3-12F)
アルコーブ面積:7.60㎡

  • アルコーブ
  • 玄関からリビングが見えない間取り
  • 和室付き
  • 可変式間仕切り
  • ウォークインクローゼット
  • 浴室に窓
  • トランクルーム
  • 東向き
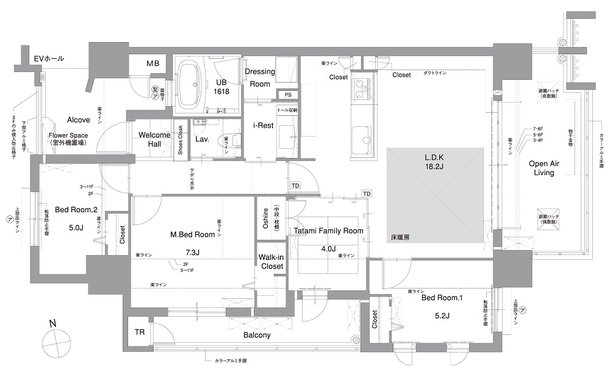
アーティックス夜宮パークアヴェニュー 間取り C type
タイプ

C type

間取り

3LDK

専有面積

77.97㎡

バルコニー面積

-

備考

バルコニー面積:14.29㎡(2-8F)、14.79㎡(9-10F)、16.91㎡(11F)
アルコーブ面積:3.84㎡

  • アルコーブ
  • 和室付き
  • 可変式間仕切り
  • ウォークインクローゼット
  • 浴室に窓
  • トランクルーム
  • 東向き

このページの一番上へ